Westwerk van de Sint-Servaasbasiliek
| Westwerk van de Sint-Servaasbasiliek | ||||
|---|---|---|---|---|
| ||||
Bovenbouw van het westwerk en westwerkboog (links)
| ||||
| Plaats | Maastricht, Sint Servaasklooster / Henric van Veldekeplein | |||
| Gewijd aan | Maria (westkoor), Sint-Agatha & Karel de Grote (proostenkapel) | |||
| Coördinaten | 50° 51′ NB, 5° 41′ OL | |||
| Gebouwd in | 11e-12e eeuw | |||
| Restauratie(s) | 1887-1901, 1984-1986 | |||
| Architectuur | ||||
| Bouwmateriaal | kolenzandsteen, Limburgse mergel, Franse kalksteen, grauwacke, Kordeler en Udelfanger zandsteen, basaltlava (profiellijsten, bogen)[1] | |||
| Stijlperiode | romaans | |||
| Afmeting | ca. 34 x 15 x 30 m (l x b x h) | |||
| Toren | 55,8 m (2x)[2] | |||
| Interieur | ||||
| Altaar | westwerkaltaar | |||
| Orgel | hoofdorgel van de Sint-Servaas | |||
| Diverse | westkoor, troonloge, proostenkapel, Keizerzaal, Grameer | |||
| Afbeeldingen | ||||
| ||||
Zuidelijke galerijverdieping
| ||||
| ||||
Keizerzaal
| ||||
| ||||
Het westwerk van de Sint-Servaasbasiliek is een romaans westwerk uit de elfde en twaalfde eeuw, dat onderdeel is van de Sint-Servaasbasiliek in de Nederlandse stad Maastricht. Het bouwwerk wordt gezien als een van de invloedrijkste westwerken uit de romaanse periode, met verschillende navolgingen. Opvallende elementen van het exterieur zijn de massieve onderbouw en de bogen over het Sint Servaasklooster. Van het interieur zijn de galerijen met de troonloge en de proostenkapel, en de onafgewerkte Keizerzaal van belang. De gebeeldhouwde westwerkkapitelen worden tot de hoogtepunten van de Maaslandse kunst gerekend.[3]
Geschiedenis
Bouwgeschiedenis
In de negentiende eeuw meende men dat het westwerk uit de Karolingische tijd stamde en zelfs door Karel de Grote gebouwd zou zijn, maar daarvoor is geen enkel bewijs voorhanden.[noten 1] Bovendien wijst de architectuur ontegenzeglijk op een latere bouwperiode.

De architectuurhistoricus Aart Mekking, die met een groep studenten van de Universiteit Utrecht omstreeks 1980 een uitgebreid bouwhistorisch onderzoek deed in de Sint-Servaaskerk, is van mening dat de eerste bouwfase van het westwerk omstreeks 1020 begon. Aan de buitenzijde van het bouwwerk is halverwege de tweede geleding een bouwnaad zichtbaar, die het einde van de eerste bouwperiode zou markeren.[4] Het is niet waarschijnlijk dat de romaanse kerk die in 1039 in aanwezigheid van keizer Hendrik III werd ingezegend en waar hij enkele dagen later feestelijk herkroond werd, al een volwaardig westwerk bezat.
Zeker is dat proost Humbertus (proost van Sint-Servaas van ca. 1050-1086) aan het westwerk heeft gebouwd. Op zijn in 1988 ontdekte grafkruis wordt vermeld dat tijdens zijn bewind "drie kapellen aan de zijkanten en eentje aan de westzijde" (capellis III. lateralibus [et] una occidentali) tot stand kwamen. Het is echter niet zeker of deze westelijke kapel vereenzelvigd mag worden met het westkoor.
Waarschijnlijk werd het westwerk pas rond het midden van de twaalfde eeuw voltooid, tijdens het proostschap van Arnold van Wied (1138-1151), de periode waarin volgens kunsthistorica Elizabeth den Hartog de westwerkkapitelen tot stand kwamen.[5] Volgens Mekking verhuisde het in Maastricht werkzame steenhouwersatelier in het voorjaar van 1168 naar Eisenach, waar men in de Wartburg diverse kapitelen aantreft die duidelijk door dezelfde hand vervaardigd zijn als die in de Sint-Servaaskerk.[noten 2] Aangenomen mag worden dat het interieur van het Maastrichtse westwerk toen voltooid was. Mekking is van mening dat de torenbekroning, al dan niet met middentoren, pas tegen het eind van de twaalfde eeuw werd voltooid. Zijn onderzoek wees tevens uit dat tijdens deze bouwfase voor het eerst op grote schaal mergel als bouwmateriaal werd toegepast.[6][7]
Gebruik
De symboliek van de architectuur van het westwerk (zie hieronder) en de voor een leek moeilijk te begrijpen thematiek van de kapitelen, maken duidelijk dat dit gedeelte van de kerk niet bedoeld was voor het gewone kerkvolk. Dit was het domein van de kanunniken en de proost, vooral bedoeld om indruk te maken op bezoekers van wie eveneens een zeker intellectueel niveau verwacht werd.[noten 3] Hier werden hoge gasten ontvangen, belangrijke vergaderingen gehouden, verdragen gesloten en oorkonden ondertekend. In de noordelijke galerij van het westwerk bevond zich de privékapel van de proost. Deze was vanouds toegewijd aan Sint-Agatha, na 1165 ook aan Karel de Grote. Hier stond waarschijnlijk een houten beeld van de keizer.[8] De latere volksverering van Karel de Grote, vanaf de late veertiende eeuw, vond niet in het westwerk plaats, maar elders in de kerk.

Het westkoor in het westwerk was vanouds aan Maria gewijd. Hier bevond zich een Maria-altaar waarop waarschijnlijk een Mariabeeld stond, de nog in de kerk aanwezige dertiende-eeuwse Sedes sapientiae. Het Maria-altaar stond waarschijnlijk achter het nog ter plekke aanwezige westwerkaltaar (met onder andere een Maria-reliëf). In de Ordinarius Chori, een liturgisch handboek uit de late dertiende eeuw, wordt vermeld dat het westwerk een belangrijke liturgische functie vervulde op bepaalde feestdagen, zoals in de Kerstnacht en tijdens de Paaswake.[noten 4] Tijdens het octaaf van Maria-Geboorte verhuisde het complete kapittel naar het westwerk ("Nieuwwerck"), om daar een week lang de getijden bij te wonen.[9]
Tijdens de plundering door de Spanjaarden in 1579 werden niet alleen de (zilveren?) kroon en rozenkrans van het Mariabeeld gestolen, maar ook de collectebus, die bedoeld was voor het onderhoud van het altaar en voor het opdragen van missen. Dat dit niet het einde was van het Maria-altaar in het westkoor blijkt uit een schenking in 1618, bedoeld voor zondagse missen aan dit altaar. Uit een mededeling in 1784 kan worden afgeleid dat in het "Nieuwwerk agter aan de Kerk" koorbanken stonden die voorheen (dus vóór 1784) gebruikt werden door cellebroeders om hier de mis bij te wonen.[10]
Na de opheffing van het Sint-Servaaskapittel en een korte periode van secularisatie, werd de kerk in 1804 opnieuw in gebruik genomen, niet meer als kapittelkerk maar als parochiekerk. Een van de eerste acties van het nieuwe parochiebestuur was de bouw van een muur die het westwerk afscheidde van het kerkschip, wellicht vanwege bouwvalligheid van dit deel. Het dubbelreliëf van het westwerkaltaar werd in deze tijd ernstig verminkt. Later verdween de scheidingsmuur weer en werd het westwerk ingericht ten behoeve van het kerkkoor en het orgel. In 1845 werd op de grens van het westwerk en het schip het gipsen standbeeld van Karel de Grote van de hand van de Belgische beeldhouwer Willem Geefs geplaatst, ter vervanging van een ouder beeld, dat in 1812 in de toen gesloopte vieringscrypte was begraven.[11]
Verbouwingen, restauraties
Het westwerk is in de loop der eeuwen grotendeels ongewijzigd gebleven. Alleen de torenspitsen en de beschildering van het interieur zijn diverse malen aan de smaak der tijd aangepast. Bij het bouwhistorisch onderzoek begin jaren tachtig meende men in het westwerk sporen te zien die wezen op de aanwezigheid van een achthoekige stenen middentoren.[12][13] Door anderen werd het bestaan van een romaanse middentoren ontkent.[14] Op een laat-vijftiende-eeuwse miniatuur zijn alleen de beide hoektorens te zien, geen middentoren. Volgens de Maastrichtse humanist en geschiedschrijver Matthaeus Herbenus werd de middentoren speciaal voor de in 1515 gegoten luidklok Grameer gebouwd. Deze werd in 1556 vervangen of aangepast door Jan Pyens (of Piem), om plaats te bieden aan de nieuwe beiaard. Deze laatgotische toren bestond uit een achtkantige opbouw met vensteropeningen en een houten torenspits bekleed met lood en leien. In 1768 kreeg het westwerk een totaal ander aanzien door de nieuwe torenbekroning van de Luikse architect Étienne Fayen (ook gespeld: Fayn of Faën), vermoedelijk in opdracht van proost Petrus Renier van Wassenaer Warmond. Fayen vulde de gehele ruimte tussen de stenen opbouwen van de hoektorens op en plaatste daarop drie met elkaar verbonden baroktorens. In diezelfde periode werd de beiaard vervangen door een nieuwe van de Leuvense klokkengieter Andreas van der Gheijn, en werd op de middentoren een uurwerk aangebracht van de Maastrichtse klokkenmaker François de Beefe.
.jpg)
.jpg)
.jpg)
Tussen 1887 en 1901 werd het westwerk door architect Pierre Cuypers gerestaureerd, waarbij onder andere het sterk aangetaste muurwerk werd hersteld. De barokke torenbekroning van Fayen maakte plaats voor de nog bestaande hoektorenspitsen en een hoge neogotische middentoren, die in 1890 werd voltooid.[noten 5] In het interieur van het westwerk werden twee stookkelders aangelegd voor een verwarmingsinstallatie. Hier en daar werden extra deuren en vensters aangebracht. Het westkoor en de galerijen kreeg een typisch negentiende-eeuwse polychromie, waarbij vooral de bont beschilderde zuilen en vergulde kapitelen de aandacht trokken. De Keizerzaal werd ingrijpend gerestaureerd, waarbij twee van de vier grote bogen werden voorzien van tussenbogen met nieuwe zuilen en kapitelen, een herstel van de oorspronkelijke toestand.[15] Ook de tegelvloer dateert uit deze tijd.[16]
In september 1955 werd de middentoren van Cuypers door brand verwoest. Het klokkenspel stortte daarbij met een deel van de torenspits door het kerkdak. Het restant van de toren (de "stomp") bepaalde jarenlang het aanzien van het westwerk. Eind jaren 1970 werden plannen gemaakt om de kerk opnieuw te restaureren. De vraag of de middentoren herbouwd moest worden - en in geval van herbouw, welke versie - vormde een twistpunt binnen het restauratieteam en bij andere betrokkenen. Uiteindelijk werd ervoor gekozen om de toren niet te herbouwen en de klokken een plek te geven in de twee andere torens: het carillon en de luidklokken in de noordtoren en Grameer in de zuidtoren. Daartoe moesten in de zuidtoren extra galmgaten worden gecreëerd. De westwerkmuren werden tussen 1984 en 1986 steen voor steen geïnspecteerd, waarbij poreuze stenen werden vervangen door blokken grauwacke, afkomstig uit een groeve in Lindlar (Bergisches Land, Duitsland). Daarnaast werden de uitstekende delen van de gevel (onder andere lisenen en rondboogprofielen) vernieuwd. In verband met het Zandsteenbesluit moest daarvoor, in plaats van de oorspronkelijke Udelfanger zandsteen, gebruik worden gemaakt van basaltlava uit Volvic (Auvergne, Frankrijk).[5][17] Begin jaren 1990 werd ook het interieur onder handen genomen, waarbij onder andere de neoromaanse beschildering uit de tijd van Cuypers werd verwijderd. Het grote oculusvenster kreeg in die tijd een glas-in-loodraam ontworpen door Albert Troost.
- Historische ontwikkeling westwerktorens
-
Kerk zonder middentoren, miniatuur, ca. 1485-90 -
Westwerk met laatgotische middentoren, 1697 -
Barokke westwerkbekroning, midden 19e eeuw -
Afbraak baroktorens, behoud raamwerk zijtorens, 1887 -
Dwarsprofiel westwerk met drietorengroep van Cuypers -
Neogotische middentoren en romaanse hoektorens, 1912 -
Koperen daken hoektorens en restant middentoren, 1958 -
Westwerk met twee torens tijdens restauratie, 1984
Beschrijving
Exterieur
Het westwerk van de Sint-Servaasbasiliek bestaat uit een grote, rechthoekige onderbouw van drie verdiepingen met daarop twee torens met een totale hoogte van circa 55 meter. De drie horizontale geledingen van de onderbouw nemen naar boven toe in hoogte af en zijn voorzien van spaarvelden met lisenen en boogfriesen. Op het dak bevindt zich aan de westzijde een grote dakkapel, aangeduid als het "dwerghuis". Ter weerszijden daarvan rijzen de hoektorens op, bestaande uit een stenen deel met twee geledingen en daarboven een houten opbouw met torenspits. Het bouwwerk is in romaanse stijl opgetrokken, grotendeels uit kolenzandsteen, maar met gebruikmaking van zeker vijf andere steensoorten.
Onderbouw

De westgevel van het westwerk is door verticale lisenen in drie partijen verdeeld: een middenpartij, die een klein beetje naar voren springt, en twee zijpartijen. De middenpartij is onderverdeeld in drie, de zijpartijen in twee traveeën, die echter iets breder zijn. Op de begane grond wordt elke travee aan de bovenkant afgesloten door een rondboog die op pilasters met imposten rust. Op de hoeken ontbreken deze pilasters. De noord- en zuidgevel hebben dezelfde indeling als de middenpartij van de westgevel, hoewel de noordgevel deels aan het oog onttrokken is door het romaanse Westportaal. In deze gevel bevinden zich geen vensteropeningen, alleen een lichtspleet bij de hoek. In de andere gevels zijn enkele rondboogvensters aanwezig, naast diverse lichtspleten. De zuidgevel ligt geheel vrij, nadat in het begin van de twintigste eeuw de hier tegenaan gebouwde graanschuur van het kapittel (het "spijker") was gesloopt. Het vrijgekomen pleintje ligt lager dan de aangrenzende straat Sint Servaasklooster. Sinds 1993 staat hier het bronzen standbeeld van Monulfus en Gondulfus van Jef Courtens.
De indeling van de middenverdieping (galerijverdieping) lijkt op die van de begane grond; alleen treft men hier in plaats van één rondboog per travee telkens twee kleinere aan, welke afwisselend steunen op pilasters en geprofileerde kraagstenen. De noord- en zuidgevel zijn weer op dezelfde manier ingedeeld. In beide gevels bevinden zich twee rondboogvensters. De westgevel wordt gedomineerd door een groot oculusvenster, geflankeerd door rondboogvensters, één per travee. Op de hoeken ontbreken deze; hier zijn slechts lichtspleten aanwezig (vanwege de achterliggende trappenhuizen). In de noordoostgevel, alleen te zien vanuit de pandhoftuin in de kruisgang, is de apsis (eigenlijk apsidiool) zichtbaar van de Proostenkapel. De in mergel opgetrokken apsidiool heeft een half kegeldak met onder de daklijst een rondboogfries. In de ronding van de muur bevindt zich een rondboogvenstertje. Boven de apsidiool is een kruisvormige lichtopening uitgespaard.
De bovenverdieping (niveau Keizerzaal) is aanzienlijk minder hoog, maar de indeling in lisenen en spaarvelden is vergelijkbaar. De rondboogfriesen in het middengedeelte van de westgevel bestaan uit drie, aan de zijkanten uit vier boogjes, evenals aan de noord- en zuidzijde. De kroonlijst boven de boogfries draagt tevens de dakgoot. In de westgevel bevinden zich op dit niveau vijf oculusvensters op rij (niet in de hoektraveeën). Boven het middelste venster is een stenen dakkapel ("dwerghuis") aangebracht met een groot vierpasvenster. Aan de noord- en zuidkant bevinden zich drie tweelichtvensters met deelzuiltjes. In de oostgevel, waar het gotisch gewelf tegenaan gebouwd is, zijn deze tweelichtvensters alleen aanwezig bij de hoeken.[18][19]
-
Laagste niveau uit het zuiden (met Monulfus en Gondulfus) -
Galerij- en Keizerzaalniveau uit het zuidwesten -
Idem met dwerghuis en torens uit het westen -
Apsidiool proostenkapel vanuit de pandhof
Westwerktorens
De noordelijke en zuidelijke westbouwtorens dateren uit de tweede bouwfase rond het midden van de twaalfde eeuw. De torens zijn slanker dan de onderbouw van het westwerk en rijzen op uit het dak van de Keizerzaal. Aan de oostzijde gaat de onderbouw zonder inspringen over in twee circa 14 m hoge, stenen torens. Deze bestaan uit twee geledingen, gescheiden door een waterlijst. De indeling in spaarvelden met lisenen, rondbogen en boogfriesen lijkt op die van de bovenste verdiepingen van de onderbouw. De noord- en zuidzijden van de torens hebben drie spaarvelden; de iets smallere oost- en westzijde twee. In de bovenste geleding bevinden zich galmgaten voor de luidklokken en het carillon. De galmgaten, eigenlijk niet meer dan spleten, zijn paarsgewijs in de spaarvelden geplaatst, telkens gescheiden door een deelzuiltje met een teerlingkapiteel. Aan de naar het Vrijthof toegekeerde zijden zijn de galmgaten verbreed, waarschijnlijk om de draagwijdte van het klokgelui te vergroten. Het stenen deel van de torens wordt aan alle zijden afgesloten door rondboogfriesen en geprofileerde waterlijsten. Hierboven beginnen de met leien gedekte, afgeknotte tentdaken met daarboven de torenbekroningen.
De houten bovendelen van de torens dateren uit de tijd van Cuypers-restauratie, maar zijn min of meer een reconstructie van de oorspronkelijke situatie. Ze bestaan uit een vierkante opbouw, oprijzend uit het dak van de veel bredere stenen toren, met aan elke zijde drie langwerpige openingen en een fronton. Het houten raamwerk van dit deel dateert uit de late middeleeuwen en is zowel door Fayen als Cuypers hergebruikt. Daarboven rijst de achtkantige spits tussen vier topgevels. De leien daken zijn tijdens de restauratie van de jaren tachtig hersteld. De moderne torenkruizen op vergulde bollen dateren eveneens uit die tijd.
De ruimte tussen de twee westwerktorens, waar in de loop der eeuwen diverse middentorens hebben gestaan, wordt sinds 1983 gedekt door een eenvoudig zadeldak.[20][21]
-
Vanuit het zuiden -
Vanuit het westen -
Zuidelijke toren -
Noordelijke torenbekroning
Westwerkbogen
De romaanse bogen die over de straat Sint-Servaasklooster reiken, zijn onderdeel van een dubbele schoormuur of steunbeerconstructie tegen de westgevel van het westwerk. De constructie bestaat uit twee muren van kolenzandsteen, waarvan de noordelijke 175 cm dik is en de zuidelijke 147 cm. Ze dateren waarschijnlijk uit de twaalfde of dertiende eeuw.[noten 6] De noordelijke muur is recht van boven; de zuidelijke loopt schuin omhoog en reikt daarom hoger tegen de westelijke muur van het westwerk. In de muren zijn vier rondboogpoorten uitgespaard, waarvan de oostelijke breder en hoger zijn dan de westelijke. Aan de noordzijde van de noordelijke muur sluit de Hoge Leenzaal aan, een overblijfsel van de proosdij van Sint-Servaas uit dezelfde periode. Aan de zuidzijde van deze muur zijn enkele kraagstenen en dakmoeten te zien, restanten van de aanhechting van een overdekte loopbrug tussen de proosdij en het westwerk. Het zogenaamde "proostenpoortje" gaf toegang tot de proostenkapel in het westwerk.[22][23] In een nis in dezelfde muur is tijdens de Cuypers-restauratie een neoromaans beeldje van Maria met Kind als Sedes sapientiae geplaatst.[noten 7]
-
Poortdoorgangen -
Schuin oplopende zuidmuur -
Proostenpoortje noordmuur -
Madonna met Kind
Interieur
Inwendig bestaat het westwerk uit drie verdiepingen met daarboven de twee torens. De lagere verdiepingen zijn geopend naar het kerkschip; daarboven bevinden zich afgesloten ruimtes. Opvallend is de afwezigheid van een westwerkcrypte. De twee stookkelders dateren uit de tijd van Cuypers.[24][25]
Begane grond


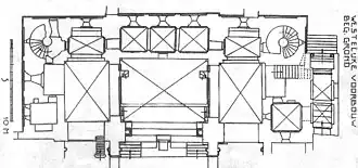
De begane grond van het westwerkinterieur bestaat uit drie centrale ruimtes, die in het verlengde liggen van de middenbeuk en de zijbeuken, met daaromheen elf kleinere ruimtes, die deels met elkaar en met de centrale ruimtes zijn verbonden door rondbogige openingen. In de noordwestelijke en zuidwestelijke hoeken bevinden zich de trappenhuizen naar de hogere verdiepingen.
De drie centrale ruimtes worden visueel van het kerkschip gescheiden door hun verhoogde ligging en door drie grote scheibogen, waarvan de middelste vanuit de kerk gezien als triomfboog fungeert. Deze ruim negen meter wijde boog wordt gedragen door gestapelde zuilen met rijk gedecoreerde kapitelen. De schachten van het onderste zuilenpaar zijn glad en zwart geverfd; die daarboven zijn schroefdraadvormig geprofileerd en zwart-grijs. Vóór de triomfboog staat het romaanse westwerkaltaar met altaarretabel. De ruimte erachter wordt aangeduid als middenbeuk of westwerkkoor en is toegankelijk via trappen aan weerszijden van het westwerkaltaar. Het westwerkkoor ligt iets lager dan de aansluitende zijbeuken. De ruimtes zijn overkluisd met ribloze kruisgewelven; dat van de middenbeuk rust op geprofileerde consoles. In het gewelf van de noorderbeuk zit een gat voor het klokkenluiderstouw. Centraal in het westwerkkoor staat het hoofdorgel, afkomstig uit de voormalige Dominicanenkerk, deels nog zeventiende-eeuws, maar diverse malen gerestaureerd en uitgebreid. De negentiende-eeuwse orgelkast ontneemt enigszins het zicht op het westkoor en de galerijen.
Van de elf rechthoekige nevenruimtes die het westwerkkoor en de zijbeuken aan drie zijden omgeven, grenzen er vijf aan de westgevel (de trappenhuizen in de hoeken niet meegerekend). Daarvan zijn de buitenste twee geopend naar de zijbeuken. De middelste drie worden tegenwoordig door een muur aan het oog onttrokken; wellicht vormden ze ooit een uit drie traveeën bestaande uitbreiding van het westkoor. In de middelste travee is een klein rondboogvenster aangebracht. Van de nevenruimtes ten noorden en ten zuiden van de zijbeuken is er telkens één naar de zijbeuk geopend; de aansluitende ruimte is van daaruit te betreden. Drie van deze nevenruimtes dragen een tongewelf; het vierde, aan de noordoostzijde, heeft een kruisgewelf, zoals ook de westelijk nevenruimtes.
In een van de nevenruimtes staat sinds de laatste restauratie het meer dan levensgrote standbeeld van Karel de Grote, de Frankische keizer die in de negentiende eeuw werd gezien als bouwheer van het westwerk. Het gipsen beeld van de Belgische beeldhouwer Willem Geefs werd in 1845 geschonken door kolonel Nijpels, ter vervanging van een ouder beeld. Het stond aanvankelijk op een meer prominente plaats vóór het westwerkaltaar, maar werd bij de laatste restauratie naar de noordelijke nevenruimte verbannen, bijna onzichtbaar vanuit de kerk. Aan de andere kant, tegen de afsluitende muur van de zuidelijke nevenruimte, staat een moderne beeldengroep die het dragen van de Noodkist voorstelt.[26][27]
-
Gewelf middenbeuk en triomfboog -
Westwerkkoor met orgel en zuidbeuk -
Noordbeuk met nevenruimte en galerij -
Standbeeld van Karel de Grote
Galerijverdieping

Op de middenverdieping van het westwerk liggen de galerijen in een U-vorm rondom het centrale atrium (de vide boven het westkoor en de zijbeuken ). De galerijen liggen boven de eerder beschreven nevenruimtes op de begane grond. De galerijen worden net als de centrale ruimtes gedekt door ribloze kruisgewelven. Deze steunen op vier zuilen, zes halfzuilen en twintig hoekzuilen. De vierendertig figuratieve kapitelen van de westwerkgalerij behoren tot het beste wat de Maaslandse beeldhouwkunst heeft voortgebracht (zie afsluitende paragraaf).[28]
De westelijke galerij springt vanuit de kerk gezien het meest in het oog. Deze wordt afgesloten door een drievoudige boogstelling, waarvan de middelste boog tweemaal zo breed is als de andere (en tegelijkertijd een stuk hoger). De drie bogen steunen in het midden op vrijstaande zuilen en aan de zijkanten op halfzuilen, alle voorzien van gebeeldhouwde kapitelen. Het middendeel van de westelijke galerij heeft een verhoogd half koepelgewelf. In de achterwand bevindt zich tussen twee rondboogvensters een grote oculus. Het glas in lood van de ramen is rond 1990 door Albert Troost ontworpen. Het ronde raam toont de zon, aan weerszijden daarvan zijn de aartsengelen Michaël en Gabriël afgebeeld. Dit deel van de galerij, exact tegenover het priesterkoor gelegen, wordt aangeduid als de troonloge, de plek waar de keizer zou moeten plaatsnemen. Of de Duitse koningen hier ooit gezeten hebben, is niet zeker.
De noordelijke en zuidelijke galerij worden beide afgesloten door een dubbele boog met in het midden een vrijstaande zuil. De noordgalerij was vroeger door middel van het "proostenpoortje" en een overdekte loopbrug verbonden met de proosdij van Sint-Servaas. In deze galerij bevindt zich de proostenkapel, de privékapel van de proost van het Sint-Servaaskapittel. De kapel heeft een van buitenaf zichtbare apsidiool. Hierin is een eenvoudig altaar geplaatst met een oude altaarsteen, die mogelijk afkomstig is van het oorspronkelijke Maria-altaar in het westwerkkoor en daar onder het orgel vandaan kwam.[29] Ter weerszijden van het altaar zijn rondbogige nissen in de muren aangebracht.
Boven de galerijgewelven bevindt zich een lage ruimte, "corridor" genoemd, die een verbinding vormt tussen de noordelijke en zuidelijke zijbeuk van de kerk, om het westkoor heen. Aan de noordoostkant geeft een in de dikte van de oostmuur uitgespaarde trap toegang tot het gewelf van de noordelijke zijbeuk. Aan de zuidzijde geeft de corridor toegang tot het dak van de zuidbeuk.[30][31]
-
Troonloge achter het orgel -
Zuidwestelijke galerij -
Noordwestelijke galerij -
Noordgalerij en proostenkapel
Keizerzaal
Boven de galerijverdieping bevindt zich de imposante maar onvoltooide Keizerzaal. De indeling correspondeert met die van de begane grond. De centrale ruimte heeft een koepelgewelf. De koepel en het daarachter gelegen vierpasvenster waren ooit zichtbaar vanuit de kerk, terwijl men vanaf de Keizerzaal zicht had op het schip en het priesterkoor. De open arcade in de oostwand werd bij de aanleg van het gotisch gewelf in de vijftiende eeuw dichtgemetseld. Enkele kapitelen van de arcade zijn elders in de kerk bewaard gebleven. De kleurrijke tegelvloer dateert uit de tijd van de Cuypers-restauratie. De Keizerzaal wordt soms voor concerten gebruikt, maar is door de smalle, uitgesleten trappen moeilijk bereikbaar.[32]
-
Overzicht Keizerzaal -
Koepel middenbeuk -
Centraal vierpasvenster -
Westelijke galerij
Interieur westwerktorens
Het muurwerk van de westwerktorens verheft zich bijna 22 m boven de vloer van de Keizerzaal (circa 14 m boven de vlakke zoldering van de zijbeuken). De wenteltrappen in de onderbouw zijn rechtsdraaiend. De spil en de treden zijn van kolenzandsteen en harde mergel. De spil heeft een doorsnede van 110 cm. De treden zijn 130 cm breed. Het gewelf is een zogenaamd "doorgaand slakkenhuisgewelf". De trappen leiden naar torenkamers, die een oppervlakte hebben van ongeveer 8 bij 5 m en een hoogte van circa 6 m. De donkere ruimten ontvangen slechts licht via lichtspleten. Een houten trap voert langs de oostmuur naar de hoger gelegen zoldering waar de klokken hangen. In de noordtoren hangen vijf luidklokken en daarboven, in de houten opbouw, een beiaard. In de zuidtoren hangt slechts één luidklok, maar wel de grootste, Grameer, een kopie van de originele klok uit 1515, die zich sinds 1984 in de pandhof bevindt.[33]
-
Trappen noordtoren -
Uitgesleten trappen -
Ruimte boven Keizerzaal -
Nieuwe Grameer
Symbolische betekenis
Het westwerk als "Stad Gods"
_-_schip_2014_01-cropped2.jpg)
In de romaanse bouwkunst wordt het oostkoor vanouds gezien als het sacerdotium, het priesterlijk domein, terwijl het westwerk het wereldlijk domein (regnum) vertegenwoordigt, waar de geestelijke en de wereldlijke machthebbers elkaar konden ontmoeten. In het westwerk van de Sint-Servaas zou dit tot uiting komen onder andere in de aanwezigheid van de proostenkapel (de privékapel van het wereldlijk hoofd van het kapittel), de troonloge en Keizerzaal, en de thematiek van de kapitelen (zie hieronder). Volgens Aart Mekking verwijst de architectuur van de Sint-Servaas, als keizerlijke kerk, naar de "stad van God op aarde" (zie Augustinus' De civitate Dei) en het paleis en de tempel van David. De grote triomfboog tussen westwerk en kerkschip, de drievoudige boogstelling van de galerijverdieping, de troonloge onder de halfkoepel en het grote oculusvenster achter de troonloge, zijn volgens Mekking allemaal symbolische verwijzingen naar die Stad Gods. In zijn optiek zou het westwerk om die reden drie torens gehad moeten hebben, een visie waarvoor hij zich tijdens de kerkrestauratie van de jaren tachtig tevergeefs inzette.[34][35]
Een keizerlijke kerk
In de middeleeuwen hadden de Rooms-Duitse keizers geen vaste residentie en hun bezoeken aan de centra van het rijk werden veelal bepaald door religieuze festivals, kerkwijdingen en (her)kroningen. De troonloge in het westwerk was dan de plaats vanwaar de keizer en zijn gevolg, gescheiden van het gewone kerkvolk de mis kon volgen. Andere voorbeelden hiervan zijn te vinden in de Dom van Aken en de abdijkerken van Corvey en Reichenau. Volgens Elizabeth den Hartog was de functie van troonloge en Keizerzaal in het westwerk puur symbolisch; volgens haar nam de keizer, als lid van diverse belangrijke kapittels, zijn plaats in op het koor in het middelpunt van de liturgische handeling en zichtbaar voor eenieder.[noten 8] Ook Mekking ging ervan uit dat de symbolische betekenis van de architectuur van het westwerk belangrijker was dan het daadwerkelijk gebruik ervan.[36]
Van keizer Hendrik III is bekend dat deze niet alleen aanwezig was bij de kerkwijding op 12 augustus 1039, maar ook drie dagen later in dezelfde kerk "herkroond" werd in aanwezigheid van de Lotharingse edelen.[37] Wellicht was het omstreeks 1150 voltooide westwerk van de Sint-Servaaskerk bedoeld voor de herkroning van Koenraad III, maar overleed deze voordat de feestelijkheden konden plaatsvinden. Dat zou ook verklaren waarom delen van het westwerk, onder andere de Keizerzaal, de indruk maken onaf te zijn.[38]
Kunsthistorische betekenis
Navolgingen
Het westwerk van de Sint-Servaaskerk in Maastricht vond navolging bij diverse voorname kerken binnen en buiten het bisdom Luik. In de stad Luik is met name het westwerk van de Sint-Bartolomeüskerk een duidelijke kopie van het Maastrichtse, wellicht een gevolg van de rivaliteit tussen de twee steden. Ook de westwerken van de Sint-Jacobskerk in Luik, de Sint-Germanuskerk in Tienen en de Dom van Xanten worden gezien als kopieën van het Sint-Servaaswestwerk.[noten 9] Het westwerk van de Sint-Gertrudiskerk in Nijvel geldt als een navolging van de Dom van Trier en de Dom van Mainz, grootser en fraaier gedetailleerd nog. Volgens Den Hartog keek men in Nijvel bewust naar Duitse voorbeelden om daarmee de bestaande Maaslandse westwerken te overtreffen.[40]
-
Westwerk St-Bartolomeüskerk, Luik -
Westwerk St-Jacobskerk, Luik
-
Westwerk St-Germanuskerk, Tienen
-
Westwerk St-Gertrudiskerk, Nijvel
Romaanse bouwsculptuur
De bouwsculptuur in het westwerkinterieur behoort tot de hoogtepunten van de Maaslandse kunst. Op de 34 bewerkte kapitelen op de begane grond en in de galerijen zijn onder andere scènes te zien ontleend aan Augustinus' De Civitate Dei, bestiaria en andere middeleeuwse boeken. Behalve bladornamenten, dierenparen en mensen met hun dagelijkse bezigheden, zijn mensen en mensachtige wezens afgebeeld die verstrikt zijn in planten en in gevecht zijn met dieren en monsters. De westwerkkapitelen geven een fascinerend inzicht in de middeleeuwse wereld. Uit dezelfde tijd (midden twaalfde eeuw) stamt het westwerkaltaar met het altaarretabel (dubbelreliëf) dat bestaat uit een afbeelding van de tronende Christus geflankeerd door de knielende Petrus en Servatius (bovenpaneel), en een typisch Maaslandse Sedes sapientiae in een mandorla, vastgehouden door twee engelen (benedenpaneel). Door verschillende auteurs is een verband vastgesteld tussen het romaanse beeldhouwwerk in Maastricht en onder andere Utrecht (Pieterskerk), Bonn (dubbelkapel Schwarzrheindorf) en Eisenach (Nikolaïkerk en Wartburg).[41][42]
-
Kapitelen triomfboog -
Kapiteel zuidwestelijke galerij -
Westwerkaltaar -
Dubbelreliëf
Zie ook
- Sint-Servaasbasiliek (Maastricht)
- Kruisgang van de Sint-Servaasbasiliek
- Crypten van de Sint-Servaasbasiliek
- Kapellen van de Sint-Servaasbasiliek
Bronnen, noten en verwijzingen
- Geraadpleegde literatuur
- Bosman, Lex (1983): 'De westbouw', in: De Sint Servaas #9 (restauratie-informatie bulletin), pp. 70-71. Stichting Restauratie De Sint Servaas, Maastricht
- Brouwers, Rob, Monique Dickhaut (1984/1985): 'Vraagstuk middentoren; steeds een ander antwoord', 'Vraagstuk middentoren; zoeken naar een nieuw antwoord', 'Westelijke zijtorens; historie en restauratie', 'Het carillon', 'Restauratie natuursteen westbouw', 'Restauratienieuws' en 'De pandhof heringericht'. Reeks artikelen van het Bouwbureau Restauratie Sint Servaas, in: De Sint Servaas #14, 16, 18, 24, 56 (restauratie-informatie bulletin), pp. 114-115, 126-129, 145-146, 190-191, 447-448. Stichting Restauratie De Sint Servaas, Maastricht
- Dickhaut, Monique (1988): 'De inventaris geïnventariseerd (2): Karel de Grote'. In: De Sint Servaas #37 (restauratie-informatie bulletin), p. 298. Stichting Restauratie De Sint Servaas, Maastricht
- (en) Hartog, Elizabeth den (1992): Romanesque Architecture and Sculpture in the Meuse Valley. Maaslandse Monografieën #8. Eisma, Leeuwarden/Mechelen. ISBN 90-74252-04-4
- (en) Hartog, Elizabeth den (2002): Romanesque Sculpture in Maastricht. Bonnefantenmuseum, Maastricht. ISBN 9072251318
- Haye, Régis de la (1988): 'Karel de Grote aan de kant gezet', in: De Sint Servaas #37 (restauratie-informatie bulletin), pp. 296-297. Stichting Restauratie De Sint Servaas, Maastricht
- Hellenberg Hubar, Bernadette van (1982): St. Servaaskerk II. De Romaanse kerk, Maastrichts Silhouet #10, pp. 35-46. Stichting Historische reeks Maastricht, Maastricht. ISBN 9070356104
- Hellenberg Hubar, Bernadette van (1982): 'Cuypers' tweevoudige ontwerp voor de middentoren van de westbouw', in: De Sint Servaas #6 (restauratie-informatie bulletin), pp. 48-49. Stichting Restauratie De Sint Servaas, Maastricht
- (de) Kroos, Renate (1985): Der Schrein des heiligen Servatius in Maastricht und die vier zugehörigen Reliquiare in Brüssel. Zentralinstitut für Kunstgeschichte, München. ISBN 3422007725
- Mekking, Aart, e.a. (1982): 'Bijdragen tot de bouwgeschiedenis van de Sint-Servaaskerk te Maastricht, deel III, De Westpartij', in: Publications (PSHAL deel 118), pp. 86-247. LGOG, Maastricht
- Mekking, Aart, e.a. (1983): 'Bijdragen tot de bouwgeschiedenis van de Sint-Servaaskerk te Maastricht, deel III, De Westpartij (slot)', in: Publications (PSHAL deel 119), pp. 59-195. LGOG, Maastricht
- Mekking, Aart (1986): De Sint-Servaaskerk te Maastricht. Walburg Pers, Utrecht/Zutphen. ISBN 906011339X
- Mestrom, P. (1983): 'Maastricht, let op uw saeck', in: De Sint Servaas #11/12 (restauratie-informatie bulletin), pp. 95-96. Stichting Restauratie De Sint Servaas, Maastricht
- Minis, Servé (1984): 'De klokkeluider van de Sint Servaas' en 'De klok van keizer Karel', in: De Sint Servaas #16 (restauratie-informatie bulletin), pp. 125-126, 130-131. Stichting Restauratie De Sint Servaas, Maastricht
- Nispen tot Sevenaer, E.O.M. van (1926/1974): De monumenten in de gemeente Maastricht, Deel 1. Arnhem (online tekst)
- Panhuysen, Titus (1990): 'Bouwperiodisering van de voorlopers van de Sint-Servaaskerk', in: De Sint Servaas (restauratie-informatie bulletin), pp. 391-394. Stichting Restauratie De Sint Servaas, Maastricht
- Tagage, Sigismund (1987/1990): 'Naar een soepel evenwicht' en '"Op zoek" naar Maria in de Sint Servaas', in: De Sint Servaas #33/34, 50 (restauratie-informatie bulletin), pp. 266-268, 398-401. Stichting Restauratie De Sint Servaas, Maastricht
- Timmers, J.J.M. (1971): De kunst van het Maasland. Maaslandse Monografieën (groot formaat), deel 1. Van Gorcum, Assen. ISBN 90-232-0726-2
- Ubachs, Pierre J.H., en Ingrid M.H. Evers (2005): Historische Encyclopedie Maastricht. Walburg Pers, Zutphen / RHCL, Maastricht. ISBN 90-5730-399-X
- Voetnoten
- ↑ De 'Karolingische mythe' gaat terug op Herbenus (1451-1538), die op zijn beurt verwees naar Jocundus (11e eeuw). Jocundus noemde wel de bemoeienis van Karel de Grote met de Sint-Servaaskerk, maar niet met het westwerk. Bosman (1983), pp. 70-71; Den Hartog (2002), p. 230.
- ↑ Het jaartal 1168 is gebaseerd op dendrologisch onderzoek in de Wartburg. Mekking (1986), p. 292.
- ↑ In de woorden van Elizabeth den Hartog: "In my opinion, the persons for whom the capitals were intended belonged to the same category of people for whom luxury bibles, editions of St. Augustine's De Civitate Dei, encyclopaedic works and bestiaries were made. Only this select group of people would have been familiar with the meaning of the illustrations depicted on the capitals." Den Hartog (2002), p. 219.
- ↑ De tweede mis in de Kerstnacht begon met de openingszang Lux fulgebit ("Een helder licht straalt over ons"). Ook in de Paaswake speelt de komst van het licht, symbool van Christus, een belangrijke rol. Het westwerk met het grote oculusvenster achter de troonloge, was daarvoor de geëigende plaats. Tagage (1987), p. 268.
- ↑ Cuypers maakte twee ontwerpen voor de middentoren, die beide verwezen naar de toren van Pyens. Ontwerp A was een belfortachtige constructie met halverwege een gaanderij en twee overdekte luchtbruggen naar de zijtorens. Ontwerp B, waarvoor het kerkbestuur uiteindelijk koos, had een robuuste onderbouw en een hoog opgaande torenspits. Een van de argumenten om voor dit ontwerp te kiezen was de onderbouw, die een stevige basis zou vormen voor Grameer en het klokkenspel. In de notulen van het kerkbestuur uit 1887 wordt deze beslissing als volgt gemotiveerd: "Wat de plannen van den westelijke middentoren aanbelangt, zoo is het kerkbestuur geneigd de voorkeur te geven aan het ontwerp B; eensdeels omdat dit ontwerp de oorspronkelijke schepping teruggeeft van den middeleeuwschen architect die de Gotische verbouwing der Kerk op meesterlijke wijze doorvoerde, en ten andere omdat volgens dit ontwerp de zware last van den toren met de groote klok (Grameer) en het klokkenspel zijn steun vindt op de stevige ondermuren, terwijl de onmiddellijke steun der constructie A slechts neerkomt op balken en timmerwerk". Van Hellenberg Hubar (1982), p. 48.
- ↑ Timmers vermoedde dat de muren al in de twaalfde eeuw waren toegevoegd om het instabiele westwerk te steunen. Volgens hem werd het westwerk om die reden niet afgebouwd. Timmers (1971), pp. 142-143.
- ↑ Volgens Victor de Stuers werd het Mariabeeldje daar op zijn instigatie geplaatst. Cuypers zou zich bij de vervaardiging ervan hebben laten inspireren door drie beelden in de collectie van het Rijksmuseum Amsterdam, afkomstig uit de gesloopte kerk van Nieuwe Niedorp. Victor de Stuers (1906): 'De bogen tegen St Servaaskerk te Maastricht'. In: De Maasgouw, 28e jaargang, nr. 1, p. 1 (online tekst).
- ↑ De Maaslandse en Rijnlandse westwerken gaan volgens Den Hartog terug op het oervoorbeeld van het oostelijk atrium van de Oude Sint-Pietersbasiliek in Rome, waar onder andere kroningen en feestelijke ontvangsten plaatshadden. Ze zijn dan ook meestal gewijd aan dezelfde patroonheiligen: Sint-Salvator (Christus als Verlosser), Maria en Sint-Stefanus. Den Hartog (1992), pp. 74-75.
- ↑ Volgens Mekking was het westwerk van de Luikse Sint-Jacobskerk een navolging van het vroege, nog onvoltooide westwerk van de Sint-Servaas en dat van de Luikse Sint-Bartolomeüskerk een navolging van het latere, voltooide westwerk.[39]
- Verwijzingen
- ↑ Brouwers/Dickhaut (1984), pp. 145-146.
- ↑ Informatiefolder 'De St. Servaasbasiliek ontsluit voor u haar poorten'.
- ↑ Den Hartog (1992), p. 183.
- ↑ Mekking (1982), pp. 174, 187-201.
- ↑ a b Den Hartog (2002), p. 219.
- ↑ Mekking (1982), pp. 174, 201-217, 230-231.
- ↑ Mekking (1986), pp. 130, 292-296.
- ↑ Den Hartog (2002), pp. 219-221, 230-232.
- ↑ Tagage (1987), p. 268.
- ↑ Tagage (1990), pp. 398-399.
- ↑ Dickhaut (1988), p. 298.
- ↑ Bosman (1983), p. 71.
- ↑ Mekking (1986), pp. 237-239.
- ↑ Brouwers/Dickhaut (1984), pp. 114-115.
- ↑ Brouwers/Dickhaut (1985), pp. 190-191.
- ↑ Mekking (1982), pp. 167-171.
- ↑ Brouwers/Dickhaut (1984), pp. 114-115, 126-127, 145-146.
- ↑ Van Nispen tot Sevenaer (1926/1974), pp. 299-301.
- ↑ Mekking (1982), pp. 113-121.
- ↑ Van Nispen tot Sevenaer (1926/1974), pp. 299-304, 314.
- ↑ Mekking (1982), pp. 121-123.
- ↑ Van Nispen tot Sevenaer (1926/1974), pp. 304-305.
- ↑ Mekking (1982), p. 117.
- ↑ Timmers (1971), p. 143.
- ↑ Mekking (1982), p. 113.
- ↑ Van Nispen tot Sevenaer (1926/1974), pp. 305-308.
- ↑ Mekking (1982), pp. 124-133.
- ↑ Mekking (1986), pp. 222-278.
- ↑ Tagage (1990), p. 398.
- ↑ Van Nispen tot Sevenaer (1926/1974), pp. 308-310.
- ↑ Mekking (1982), pp. 133-140.
- ↑ Mekking (1982), pp. 140-149.
- ↑ Mekking (1982), pp. 149-159.
- ↑ Mekking (1986), pp. 225-255.
- ↑ Den Hartog (1992), pp. 72, 75-76.
- ↑ Mekking (1986), pp. 244-246.
- ↑ Zie Festkrönung op Duitse Wikipedia.
- ↑ Den Hartog (1992), pp. 69-77.
- ↑ Mekking (1986), pp. 295-296.
- ↑ Den Hartog (1992), pp. 69-77, 83.
- ↑ Mekking (1986), pp. 195-202.
- ↑ Den Hartog (2002), pp. 14-16.

