Waterbeheer in puinwaaiers

Waterbeheer in puinwaaiers betreft het waterbeheer van rivier- en grondwater voor de productie van landbouwgewassen in puinwaaiers, de kegelvormige bodemafzettingen aan de voet van bergketens. De grove sedimenten, zoals grind en zand, worden het dichtst bij de top van de kegel gevonden. De fijnere gronddeeltjes, zoals leem en klei, komen overwegend voor aan de basis van de kegel.
Waar de snel stromende rivier vanuit het bergland de vlakte bereikt en stroomsnelheid verliest, splitst hij zich waaiervormig in meerdere rivierarmen, net als in een rivierdelta. Puinwaaiers worden daarom ook binnenlandse delta's genoemd.
De benaming "puinwaaier" is in zekere zin misleidend, want het gaat hier niet alleen om puin maar ook om gewone grond. Het gebruik van de term sedimentkegel, sedimentwaaier of alluviale waaier in analogie van het Engelse alluvial fan zou daarom de voorkeur kunnen verdienen.
In droge gebieden ontvangen de bergen meer neerslag dan de vlaktes, zodat de puinwaaier een belangrijke bron van zowel oppervlaktewater als grondwater is, waarmee landbouw mogelijk wordt gemaakt. De kegels vertonen dan groene vlekken in een dor landschap, of de groene nederzettingen liggen juist om de puinwaaier heen.
Soorten puinwaaiers
De vorm en grootte van de puinwaaier worden bepaald door de hoeveelheid water die de rivier aanvoert. Ter illustratie worden in volgorde van toenemende aanvoer de volgende waaiers besproken:
- Puinwaaiers in de riviervlaktes nabij Khuzdar in Beloetsjistan, Pakistan (Figuur 1, beneden)
- Deze waaiers worden gevoed door kleine wateropvanggebieden van plaatselijke riviertjes. Door de betrekkelijk gering rivierafvoeren, zijn de waaiers vrij steil.
- Deze redelijke grote waaier wordt gevoed door de rivier de HablehRud die zijn oorsprong heeft in de Elboers. De rivier heeft een flinke afvoer in de regentijd, maar valt daarna bijna droog.
- De puinwaaier van Punata in de Valle Alto ten oosten van Cochabamba, Bolivia (Figuur 3)
- Deze waaier wordt gevoed door de Rio Pacaraya, die ontspringt in het Andesgebergte en een grotere afvoer heeft dan de HablehRud, zodat de kegel vrij vlak en uitgestrekt is.
- De puinwaaier van de Okavango delta bij Maun in Botswana (Figuur 4)
- Deze waaier ontvangt jaarlijks een zeer grote hoeveelheid water vanuit Angola en is zeer uitgestrekt en vlak, hetgeen de reden is dat men meestal spreekt van een binnenlandse delta. Het duurt zes maanden voordat de topafvoer bij de apex van de delta de basis bereikt.
- Ruimtebeelden van puinkegels
-
Fig.1. Een betrekkelijk kleine en steile puinwaaier nabij Khuzdar, Beloetsjistan
-
Fig. 2. De flinke puinwaaier van Garmsar, ten oosten van Teheran, Iran, gelegen aan de voet van de Elboers. -
Fig. 3. De grote puinwaaier van Punata, ten oosten van Cochabamba, Bolivia, in een dal aan de voet van het Andesgebergte -
Fig. 4. De zeer uitgestrekte en vlakke puinwaaier van de rivier de Okavango bij Maun, Botswana.
Waterbeheer in verschillende puinwaaiers
Khuzdar
- Referentie 1: Modern interferences in traditional water resources in Baluchistan[1]
- Referentie 2: Water harvesting and spate irrigation options in Pakistan[2]
De gemiddelde jaarlijkse neerslag in Beloetsjistan varieert van 200 tot 400 mm afhankelijk van de hoogte van het terrein en valt voornamelijk in de winter (november tot maart). Van oudsher maakten de boeren dijkjes langs de contouren van het hellende terrein om de oppervlakteafvoer op te vangen (Fig. K1, beneden). Dit systeem, dat lokaal khuskaba wordt genoemd, verschafte extra water voor de landbouwgewassen die net boven de dijkjes werden ingezaaid en waar het opgevangen water in de bodem drong en het bodemvocht aanvulde.
Na een regenbui verschaffen de kortdurende vloeden in de riviertjes van puinwaaiers een extra bron van water. Die vloeden worden afgeleid van de riviertjes en opgevangen achter dijkjes zoals bij het khuskaba systeem (Fig. K2). Deze methode staat lokaal bekend als sailaba. De methode wordt vaak gecombineerd met het aftappen van grondwater door middel van ondergrondse tunnels die als qanats bekendstaan en lokaal karezes worden genoemd (Fig. K3).
Hoewel sailaba- plus karezsystemen ongeveer 20% van het landbouwareaal beslaan, is hun landbouwproductie meer dan 40% van het totaal.
Er is een moderne ontwikkeling gaande van bronnering met diepe bemalen putten om het grondwater beter te benutten. De eigenaars van de putten zijn vaak ondernemers van elders en de lokale bevolking loopt het gevaar het water uit de karezes te verliezen wanneer de putten het grondwater dieper wegtrekken tot beneden het niveau van de karezes (Fig K4).
- Illustraties van puinwaaiers nabij Khuzdar
-
Fig. K1. Een aarden dijk om de oppervlakteafvoer op te vangen ten behoeve van de landbouw
-
Fig. K2. Puinwaaiers met sailaba en karez systemen voor geïrrigeerde landbouw
-
Fig. K3. Permanente irrigatie en landbouw gebaseerd op het karez systeem in een kleine vallei in Beloetsjistan
-
Fig. K4. Hydrologische invloed van een moderne diepe put op het functioneren van een karez
Garmsar
- Referentie: Irrigation, groundwater, drainage and soil salinity control in the alluvial fan of Garmsar'’[3]
Het irrigatiesysteem in de puinwaaier van Garmsar is goed ontwikkeld (Fig. G1, beneden), er zijn beklede kanalen gemaakt en er is een groot bekleed dwarskanaal aangelegd dat de waaier doorkruist door het centrum.
Er zijn twee seizoenen: het natte winterseizoen en het droge zomerseizoen. Het bebouwde landbouwareaal beslaat ongeveer 30% in elk van de twee seizoenen terwijl 70% braak ligt. De wintergewassen zijn voornamelijk tarwe en gerst, terwijl de belangrijkste zomergewassen uit katoen en meloenen bestaan. het inplanten van nieuwe gewassen gebeurt voordat de oogst van de vorige gewassen wordt binnengehaald. Er is dus een korte periode waarin 60% van het gebied bebouwd is. Het braakland wordt voortdurend afgewisseld door bouwland (vruchtwisseling) zodat er geen permanente braak voortkomt, behalve aan de voet van de waaier waar bodemverzouting voor komt.

Figuur G2 (beneden) toont een geschatte waterbalans. Hierin is te zien dat de berging van irrigatieverliezen in de aquifer een belangrijke rol speelt. In het droge seizoen wordt het grondwater opgepompt door diepe putten en gebruikt voor irrigatie. Een doorsnede van de grondwater situatie is te zien in figuur G3 (beneden).
De waterrechten zijn uitgedrukt in sang, een maat van irrigatiestroming ter grootte van ongeveer 10 l/s, maar in de praktijk varieert hij van 10 tot meer dan 15 l/s. Het water wordt geleverd aan ongeveer 100 tertiaire eenheden (vaak een dorp), waarbinnen het water wordt verdeeld door 12-daagse rotaties onder de boeren die elk recht hebben op een geautoriseerde hoeveelheid sangs gedurende een bepaald aantal uren tijdens elke rotatieperiode. De dorpsgemeenschap is gelijkertijd een waterschap die verantwoordelijk is voor de verdeling van het water binnen de tertiaire eenheid n zij onderhouden de tertiaire kanalen.
De verdeling van het irrigatiewater over de gemeenschappen wordt geregeld door de Garmsar Waterstaat op basis van waterrechten en aanvullende mondelinge afspraken in overleg met de watergebruikers. Er bestaat geen zwart op wit geschreven procedure. De waterstaat onderhoudt ook de hoofdkanalen en kunstwerken. De verdeelwerken worden soms opnieuw ontworpen ter aanpassing aan mondeling doorgegeven behoeften. De eerlijke verdeling van het water is geen gemakkelijke taak omdat de jaarlijkse rivierafvoer varieert van 5 tot 20 m³/s (zie de grafiek rechts).
De diepe grondwaterputten zijn privé eigendom. Het boren van putten is onderworpen aan een licentie, maar er worden geen regels gesteld aan de hoeveelheid opgepompt water. Onlangs is de uitgifte van licenties gestopt uit vrees voor uitputting van de watervoerende bodemlagen.
In de randgebieden aan de voet van de waaier is de grondwaterstand ondiep omdat de afvoercapaciteit van de aquifer is afgenomen en wel om twee redenen: (1) de hydraulische gradiënt neemt af naarmate de hellende puinwaaier de vlakke woestijn nadert, en (2) de dikte en de doorlatendheid van het watervoerende pakket in de ondergrond neemt af in de richting van de woestijn. De noodzakelijke drainagekanalen voor het beheersen van de grondwaterstand in de randgebieden worden niet onderhouden door de Garmsar Waterstaat, maar door groepen van boeren aan wie dit land is toegewezen. Er zijn hier geen dorpsgemeenschappen. Voor het verkrijgen van irrigatiewater zijn de groepen afhankelijk van (1) de zo nu en dan voorkomende zeer grote rivierafvoeren die meer door het irrigatiesysteem kunnen worden verwerkt en daarom door worden gelaten naar de randgebieden, (2) ongebruikt restwater van het irrigatiesysteem zelf, en (3) diepe putten.
Om de landbouw in de randgebieden, die bedreigd worden door bodemverzouting, te stabiliseren wordt een methode van strokenverbouw aangeraden (Fig. G4). Volgens deze methode worden geïrrigeerde stroken aangelegd naast permanent ongeïrrigeerde stroken waardoor de verzouting wordt geleid naar de ongeïrrigeerde stroken. De methode wordt in Australië ook wel opofferingsdrainage genoemd.
- Illustraties van de Garmsar puinwaaier
-
Fig. G1. Kaart van het Garmsargebied met irrigatiekanalen
-
Fig. G2. Irrigatie- en grondwaterbalans, geschat jaarlijks gemiddelde in MCM
-
Fig. G3. Dwarsdoorsnede door de aquifer die de geohydrologische condities laat zien
-
Fig. G4. Het beginsel van strokenlandbouw en het opofferen van de permanent ongeïrrigeerde stroken waarheen de bodemverzouting wordt geleid
- Referentie: The Punata-Tiraque irrigation project near Cochabamba, Bolivia[4]
De sedimentkegel van Punata ligt in het district van Cochabamba, Bolivia. Het gebied van Punata, in het bovenstroomse gedeelte van de Valle Alto, op een hoogte van zo'n 2800 m, heeft een zomerneerslag van 400 tot 450 mm, die begint in de tweede helft van november en eindigt in maart. Mais is hier het belangrijkste voedselgewas, gevolgd door aardappelen. Alfalfa is het dominerende veevoedergewas, gevolgd door maisstro. (Fig. P1, beneden). Van oudsher konden deze gewassen alleen succesvol geteeld worden door de aanwezigheid van extra bronnen van water zoals oppervlakteafvoer, rivieren en grondwater. In de wintermaanden is de gewasgroei beperkt door het voorkomen van nachtvorst, vooral in juni en juli, en de afwezigheid van neerslag.
De landelijke bevolking in Punata wordt geschat op 25.000. Er zijn ongeveer 4000 gezinnen waarvan naar schatting 3680 boerengezinnen. De boerenbedrijven zijn klein, de gemiddelde grootte is 1,3 ha, waarvan 1 ha wordt verbouwd. De modale grootte is kleiner dan het gemiddelde, ongeveer 0,7 ha.
De neerslagverdeling in Punata wordt gekenschetst door een nat seizoen van december tot maart, een droog seizoen van mei tot oktober, en overgangsmaanden in april en november. De gemiddelde jaarlijkse neerslag is 428 mm (gemeten in San Benito van 1966 tot 1983). De neerslag met een overschrijdingskans van 75% op jaarbasis is 360 mm. De neerslag is niet betrouwbaar: in de periode van 1966 tot 1983 varieerde het jaarlijks totaal van 246 mm (1982/83) tot 591 mm (1968/69).
De hoge rivierafvoeren in het regenseizoen kunnen gebruikt worden voor irrigatie die ieder die er behoefte aan heeft. Wanneer de rivierafvoer terugloopt, mag het water alleen gebruikt worden voor irrigatie in rotaties door degenen die waterrechten bezitten (dit wordt lokaal het mitasysteem genoemd). Tegen de maand mei begint de rivier op te drogen en treedt een periode van waterschaarste in die duurt tot november.
Irrigatie is gewenst om de gewassen al te kunnen planten in augustus/september zodat een vroege oogst kan worden verkregen. De vroege oogst heeft een hoge marktwaarde en vermindert de piek in arbeidsbehoefte. Ook vermindert irrigatie het risico van opbrenstderving en verhoogt de mogelijkheden van gewassendiversificatie. Niettemin zijn er enkele boerengemeenschappen die in het verleden geen inspanningen hebben verricht om extra irrigatiewater te verkrijgen en die zich er op richtten alleen regenlandbouw te bedrijven.
Op bescheiden schaal wordt ook grondwater gewonnen voor irrigatie door het oppompen van water uit diepe putten.
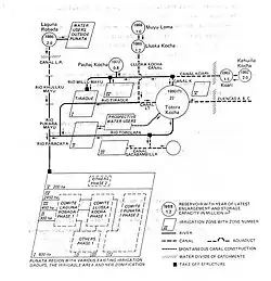
Het Punata-Tiraque-irrigatieproject werd opgezet vanaf 1970 om de meerderheid van de boeren die de sterke wens koesterden meer irrigatiewater te verkrijgen. Het project bevatte een gecompliceerd stelsel van dammen, reservoirs en kanalen in de bergen (Fig. P2).
Het bruto areaal van het Punata project wordt geschat op 4600 ha, waarvan 90% gebruikt kan worden voor landbouw en veeteelt. Bij de start van het project werden 1150 ha landbouwgrond geïrrigeerd met water opgevangen achter de Laguna Robada en Lluska Kocha dammen, of van grondwater opgepompt uit 16 diepe putten die ongeveer 350 ha bedienden. Bovendien waren er een paar honderd ha die zo nu en dan mita water ontvingen.
De traditionele irrigatiemethode is gebaseerd op zeer grote irrigatiedebieten (lokaal golpes genoemd) per landbouwbedrijf die met grote tussenpozen werden toegediend. De waterverdeelwerken in de rivier de Pucara Mayu, gelegen waar de rivier de sedimentkegel bereikt, ontvingen beurtelings het water van de Laguna Robada en Lluska Kocha / Muyu Loma reservoirs en het natuurlijke mita water, een ingewikkelde procedure. Het nieuwe project beoogt met kleinere debieten te werken die met kortere tussenpozen worden geleverd zodanig dat het systeem voor het hele gebied continu in werking is en het niet meer nodig is de verschillende waterbronnen te scheiden. Het project omvat een veel groter areaal dan het traditionele systeem met inbegrip van de gemeenschappen die het mitasysteem gebruikten (die overigens gedeeltelijk ook lid konden zijn van de gemeenschappen die het water uit de reservoirs gebruikten), alsmede de gemeenschappen die grondwaterputten gebruikten (die op hun beurt ook weer lid konden zijn van andere gemeenschappen) en diegenen die geen traditionele waterrechten bezaten.
Derhalve maakt het nieuwe irrigatiesysteem het nodig dat de traditionele waterrechten vervangen worden door een geheel nieuw systeem van rechten en plichten. Daarnaast zullen de boeren moeten wennen aan nieuwe methoden van waterverstrekking en toepassing van het water op de akker. Omdat de nieuwe irrigatiezones niet samenvallen met de grenzen van de traditionele zeggingsgebieden van de 'Comités de Riego (Fig. P3), dienen niet alleen de vormen van waterbeheer, maar ook structuur van de sociale organisatie aangepast te worden aan de veranderde omstandigheden.
- Illustraties van de Punata sedimentkegel
-
Fig. P1. Gewassenkalender van een geïrrigeerd landbouwbedrijf in het Punatagebied.
-
Fig. P2. De irrigatieprojecten in Punata met een gecompliceerd systeem van reservoirs, irrigatiezones en watergebruikersorganisaties.
-
Fig. P3. Schetskaart van de irrigatiezones met de bronnen van oppervlakte- en grondwater en de ligging van de diepe grondwaterputten.
-
Fig. P4. De doorlatendheid en het watervoerend vermogen van de aquifer neemt af naar de voet van de puinwaaier.
- Referentie: Flood-recession cropping in the molapo's of the Okavango Inland Delta, Botswana[5]
Beschrijving
De binnenlandse Okavangodelta in Noordwest-Botswana ziet er vanuit de ruimte handvormig uit met gespreide vingers (zie de kaart). De rivier de Okavango, die in Angola ontspringt, komt de delta bij de top van de sedimentkegel binnen. De rivier brengt gemiddeld 10 000 miljoen m³ water per jaar in de delta. Het debiet van de rivier is het hoogste in de maanden maart en april (gemiddeld ongeveer 1000 m³/s), met jaarlijkse variaties van 500 m³/s tot 1500 m³/s, en het laagst in november (100 tot 200 m³/s).
De grote hoeveelheid water die over de delta wordt uitgespreid wordt bijna geheel opgenomen in de blijvende en de seizoensgebonden moerassen (de laatste worden lokaal molapo's genoemd) voordat het langzaam in de bodem infiltreert of verdampt. Er is een rijke moerasvegetatie die een ideale omgeving vormt voor talloze diersoorten. De rijke fauna vindt zijn habitat op en tussen de duizenden eilanden tussen de moerassen.
Het weinige water dat de opvangcapaciteit van de delta overschrijdt stroomt van juli tot november door de vingers van de reuzenhand naar het einde van de Delta. Het duurt bijna zes maanden voordat de overmaat water die de Delta binnenstroomt de voet van de delta bereikt. Hier ontmoet het water een obstakel: de Thamalakanebreuklijn (zie de kaart). Voorbij de breuklijn begint de Kalahariwoestijn die 10 m hoger oprijst. Aan de voet van de breuklijn verzamelt de rivier de Thamalakane het overgebleven water – dat niet meer is dan 5% van de instroming – en het voert het water bijkans zonder verhang af naar de rivier de Boteti die door een doorgang in de breuklijn stroomt. Ten slotte verdampen de waterrestanten in de Makgadikgadizoutvlaktes, meer dan 200 km naar het oosten.
Hoewel de jaarlijkse neerslag betrekkelijk laag is (gemiddeld 500 mm, waarvan het grootste deel valt van juli tot november), draagt het een hoeveelheid water bij aan de delta die overeenkomt met de helft van de instroming van de rivier de Okavango. De neerslag van jaar tot jaar is net zo variabel als de instroming.
De rivier de Okavango vervoert een grote hoeveelheid zand en andere sedimenten naar de delta. De massa wordt geschat op ongeveer 2 miljoen ton per jaar. In het rivierwater opgeloste zouten bereiken ook de delta. De zoutconcentratie van het water is laag: zo'n 200 mg/l en het totale gewicht aan binnenkomende zouten is dus ongeveer 2 miljoen ton per jaar.
De sedimenten en de zouten die door de rivier de Okavango worden geïmporteerd bezinken of slaan neer in de delta. Samen met de vegetatie bouwen de sedimenten een weerstand op tegen de stroming van het oppervlaktewater. In het verleden hebben hierdoor de rivierarmen heen en weer gezwaaid tussen pink en duim, zoals gebruikelijk in puinwaaiers. Heden ten dage is de middelvinger, waaruit de rivierarm de Boro ontspringt, het belangrijkste doorgangskanaal.
Vele eilanden in de delta hebben slingers van oeverbegroeiing, maar in het midden zijn ze kaal: symptomen van zoutaccumulatie (zie de foto van de delta).
De Kalahariwoestijn werkt samen met de rivier de Okavango bij de vorming van de overwegend zandige bodems in de delta. De woestijn gebruikt de wind om zijn deel aan fijn zand te deponeren.
De geofysische karakteristieken van de Okavangodelta hebben geleid tot een lage bevolkingsdichtheid zodat de natuurlijke situatie nauwelijks door toedoen van de mens verstoord is. Daar komt bij dat de lokale bevolking meer geïnteresseerd was in de jacht en veeteelt dan in het voortbrengen van gewassen, waardoor landbouwkundige ontwikkelingen betrekkelijk beperkt zijn.
De landbouwgronden in de zuidoostelijke randgebieden van de delta, die droogvallen nadat de overstromingen zijn teruggetrokken (deze gebieden staan lokaal bekend als molapo's) hebben veelal een zandige bovengrond. In de depressies kan de bovengrond dun zijn of zelfs afwezig, waardoor zware kleigrond aan de oppervlakte ligt.
Ontwikkelingen
In 1978/79, na vier jaar van grote en langdurige overstromingen in de randgebieden waardoor landbouw in de molapo's niet mogelijk was, viel een ernstige droogte samen met het uitbreken van mond-en-klauwzeer onder het vee, waardoor de bevolking in een noodsituatie verkeerde. Dit was aanleiding tot het nemen van twee belangrijke maatregelen:
- De eerste werd genomen van 1979 tot 1981 toen, als onderdeel van het droogteverlichtingsprogramma (Voedsel voor Werk), de FAO arbeidsintensieve werkzaamheden begon door de bedijkingen – die de bevolking had aangelegd ter bescherming van de gewassen tegen overstromingen door zware regenbuien – te herstellen. Tevens werden er enkele nieuwe dijken aangelegd.
- De tweede was de constructie van het Buffelhek (zie de kaart) dat de buitenste randgebieden van de delta scheidde van het binnengebied om de verspreiding van veeziekten (vooral mond-en-klauwzeer) te voorkomen. Nadat het werk in 1983 voltooid was, was het belang van de molapo's die er buiten lagen vergroot, en wel om de volgende redenen: (1) vooral in de jaren waarin het regenseizoen laat begint betekent het jonge opkomende gras in de molapo's nadat de overstromingen zich hebben teruggetrokken de enige bron van veevoeder voor de kuddes in een wijde omtrek van de delta, en (2) door het afsluiten van de molapo's binnen het buffelhek, nam intnsiteit van de begrazing van de molapo's buiten het hek sterk toe.
In december 1983 werd een Molapo-ontwikkelingsproject gestart. Het project had tot doel de landbouwopbrengst in proefvelden te vergroten door deze te beschermen tegen hoge en langdurige overstromingen door de aanleg van dijken met sluisdeuren. Wanneer voldoende overstromingswater de molapo is binnengestroomd kunnen de deuren worden gesloten zodat vervolgens het waterpeil in de molapo daalt onder invloed van verdamping naar de atmosfeer en infiltratie in de bodem, waardoor landbouwgewassen kunnen worden ingezaaid terwijl het waterpeil buitendijks nog steeds hoog is. Het project was een antwoord op de langdurige overstromingen in de jaren 1974 tot 1978 toen landbouw in de molapo's nauwelijks mogelijk was. Echter, in meer recente jaren bleek de afwezigheid van overstromingen van enige betekenis een even grote beperking voor de landbouwproductie. Er werd toen besloten om meer aandacht te schenken aan verbeterde, meer stabiele, landbouwproductie in afhankelijkheid van de regen wanneer overstromingen uitbleven.
De hydrograaffiguur laat zien dat landbouw in de molapo's niet mogelijk is geweest in 60% van de jaren met waterstandswaarnemingen vanwege hoge en langdurige overstromingen. De figuur laat ook zien hoe maatregelen voor overstromingsbeheersing kunnen zorgen voor een tijdige verlaging van het overstromingspeil in de molapo. Nadat het vloedwater is toegelaten tot de bedijkte molapo, worden de sluisdeuren gesloten. Onder invloed van verdamping en infiltratie begint dan binnendijks de verlaging van het waterpeil in de molapo, dat het mogelijk maakt tijdig (in oktober of november) gewassen in te zaaien of te planten. Het jonge gewas gebruikt het in de bodem opgeslagen vocht (ongeveer 100 mm) om tot ontwikkeling te komen tot aan het begin van het regenseizoen (aan het eind van november of begin december). Op deze manier is het groeiseizoen verlengd, de hoeveelheid beschikbaar vocht is vergroot, en de opbrengst wordt verhoogd. Echter, het jaarlijkse succes van de maatregelen blijft afhankelijk van de hoeveelheid en tijdsverdeling van de neerslag. In een jaar met weinig of ongelijk verdeelde neerslag is een misoogst niet uitgesloten ondanks het ontwikkelingsproject.
Zie ook
Referenties
- ↑ ILRI, 1983. Modern interferences in traditional water resources in Baluchistan Gepubliceerd in: Annual Report 1982, p. 23-33, International Institute for Land Reclamation and Improvement (ILRI), Wageningen, The Netherlands. Herdrukt in Water Research Journal (1983) 139, p. 53-60, alsmede in Water International 9 (1984), p.106-111. Elsevier Sequoia, Amsterdam. On line : [1]
- ↑ Water harvesting and agricultural land development options for spate irrigation in the NWFR of Pakistan. Geraadpleegd op 1 september 2010.
- ↑ ILRI, 2000. Irrigation, groundwater, drainage and soil salinity control in the alluvial fan of Garmsar. Consultancy assignment to the Food and Agriculture Organization (FAO) of the United Nations, International Institute for Land Reclamation and Improvement (ILRI), Wageningen, The Netherlands. On line : [2]
- ↑ R.J. Sevenhuijsen, R.J. Oosterbaan and K. Zijderveld, 1988, The Punata-Tiraque irrigation project near Cochabamba, Bolivia. Consultancy Report, International Institute for Land Reclamation and Improvement (ILRI), Wageningen, The Netherlands. On line : [3] maar als je er op klikt komt hij tot leven
- ↑ ILRI, 1987. Flood-recession cropping in the molapo's of the Okavango Inland Delta, Botswana. Published in Annual Report 1986, p. 8 – 19. International Institute for Land Reclamation and Improvement (ILRI), Wageningen, The Netherlands. On line : [4]