Basiliek van Aquileia
| Basiliek van Aquileia | ||||
|---|---|---|---|---|
| ||||
Deel van het interieur van de basiliek in 2005
| ||||
| Plaats | Aquileia | |||
| Gewijd aan | Hermagoras, Fortunatus, Maria | |||
| Coördinaten | 45° 46′ NB, 13° 22′ OL | |||
| Gebouwd in | 4e eeuw (vloeren en fundamenten) 11e eeuw (huidige kerk) | |||
| Officiële website | ||||
| ||||
| Archeologische opgravingen en Patriarchale Basiliek van Aquileia | ||
|---|---|---|
| Werelderfgoed cultuur | ||
| ||
| Land | ||
| UNESCO-regio | Europa en Noord-Amerika | |
| Criteria | iii, iv, vi | |
| Inschrijvingsverloop | ||
| UNESCO-volgnr. | 825 | |
| Inschrijving | 1998 (22e sessie) | |
| UNESCO-werelderfgoedlijst | ||
De Basilica di Santa Maria Assunta ofwel Basiliek van Aquileia is de kerk van de Italiaanse stad Aquileia.[1] De kerk dateert uit de 11e eeuw. De basiliek is vooral bekend om de vierde-eeuwse vroegchristelijke mozaïekvloer waarop ze is gebouwd.
De basiliek speelde een sleutelrol in het wel en wee van Aquiliea, dat ooit een van de grootste en rijkste steden van het vroeg-Romeinse rijk was, en waarbij de basiliek zelf de grootste en belangrijkste was in de vroegchristelijke wereld op die van Rome (De Sint-Pietersbasiliek van het latere Vaticaan) na.
De mozaïekwerken uit de vierde eeuw in de basiliek zijn cruciaal voor de beeldvorming van de vroeg-christelijke wereld: het mozaïek was destijds een krachtig middel voor de uitdrukking van de vervlechtingen van sociale, politieke en religieuze aspecten van het leven. Zowel de mozaïeken en de fresco's die door het hele gebouw gevonden kunnen worden hebben de kunstwereld sindsdien beïnvloed.[2]
De kerk staat sinds 1998 als Archaeological Area and the Patriarchal Basilica of Aquileia op de Werelderfgoedlijst van de UNESCO.[3][4]
Geschiedenis
Algemeen
Opkomst van het christendom
Aquileia was oorspronkelijk een klein dorpje op de vlakte van Friuli in noord-oost Italië, op een kleine vijf kilometer van de Adriatische Zee, waarmee het via de rivier Natissa verbonden was. Het was strategisch gelegen, zodat de Romeinen 181 v.Chr. besloten er een gefortificeerde stad te bouwen als voorpost tegen de Barbaren.
Aquileia's uitstekende geopolitieke ligging, met een rivierhaven op een kleine afstand van de Adriatische Zee, was ideaal voor handel, en het was een onontbeerlijke tussenstop gedurende reizen tussen noordelijk en oostelijk Europa. Handelaren en soldaten brachten niet alleen voorspoed maar ook nieuwe ideeën, zowel religieus als filosofisch.[5] Aquileia groeide derhalve uit tot een geroemde en rijke handelsstad en een smeltkroes van culturen en religies in het Romeinse Rijk.[6][7][8]
Volgens overlevering kwam Marcus halverwege de eerste eeuw na Christus naar Aquilea om er het evangelie te verkondigen, in opdracht van Petrus, Christus' apostel en eerste paus. Marcus zou zelfs zijn evangelie in Aquileia op papier gezet hebben.[8][9]
Marcus ontmoette en bekeerde er Hermagoras, die de eerste bisschop werd van wat aanvankelijk een klein maar snel groeiende christelijke gemeenschap was.[10] Het nieuws van deze ontwikkelingen bereikte keizer Nero, die opdracht gaf Hermagoras en zijn diaken Fortunatus gevangen te zetten om zodoende de kerstening de kop in te drukken. De legende verhaalt voorts van een wonder dat in de gevangenis plaatsvond en de bekering van de cipier Pontianus. De heidense priesters waren zo verbolgen over al deze ontwikkelingen dat ze de hoofden van Hermagoras en Fortunatus eisten. De Romeinen executeerden spoedig daarop Hermagoras en zijn diaken. Zij werden daarmee een van de eerste martelaren voor het christendom in Aquileia, en zouden door dit lot samen met Heilige Maria de beschermheiligen van de latere basilica worden.[11] De legende van Marcus, Hermagoras en Fortunatus is verbeeld in de fresco-crypte van de basiliek.[10][12]
|
De aanhoudende vervolgingen noopten de christenen clandestien hun geloof te belijden, wat ze deden in een domus aan de oostelijk rand van het stadje. Dit huis zou de basis worden van de latere basiliek van Aquileia, en restanten hiervan zijn te zien in de Crypte van Opgravingen.[2][13]
Theodorische tijdperk
Met de uitvaardiging van het Edict van Milaan in 313 A.D. door Constantijn de Grote, stopte de vervolging van de christenen en konden de eerste kerken worden gebouwd.[14] Theodoor, de eerste aartsbisschop van Aquileia (308-319), pakte de verworven vrijheid groots aan en bouwde op de fundamenten van het voormalige geloofshuis het eerste vroegchristelijke complex. De grootsheid en kosten die ermee gepaard gingen toont dat er al voor het Edict een rijke christelijke gemeenschap bestond. Het getuigt er ook van dat er in die tijd stabiliteit en vertrouwen in de toekomst was.[15]
Om de rap groeiende schare gelovigen te voorzien, zou eerst onder Fortunatianus, de derde aartsbisschop (342-357), en daarna onder Chromatius, de zesde aartsbisschop (388-408), het complex nog enorm uitgebreid worden.
In 452 viel Attila de Hun echter binnen en werd een groot deel van Aquileia en het religieuze complex, en dan met name de Noordzaal, verwoest. De eerste daaropvolgende eeuwen zou het gehavende complex zonder noemenswaardige aanpassingen gebruikt worden door de gelovigen van wat ooit een glorieuze stad was, maar waarvan nu de bevolkingsaantallen terugliep. Het complex bleef echter functioneel, ook gedurende de daaropvolgende Byzantijnse overheersing,[5] gedurende welke de basiliek zich als verbindingspunt tussen de westerse en oostelijke (byzantijnse) culturen verdienstelijk zou maken.[16]
9e eeuw
In de 9e eeuw werd onder Maxentius (ca. 811-833?), wederom op de fundamenten van het voormalige complex, een basiliek gebouwd.[17] Hier werd onder meer de crypte gebouwd voor de relikwieën van Hermagoras en Fortunato. Deze liggen nog altijd ter bezichtiging in de crypte.[18]
11e eeuw
In 1031 bouwde de patriarch Poppone (1019 - 1042/1045) verder, door onder meer verhoging van de ommuring, aanmaak van de fresco's in de apsis en bouw van een 73 meter hoge klokkentoren. Poppone was een machtige bisschop en zou het ultieme stereotype zijn van de vechtpriesters uit de middeleeuwen: hij zou geregeld in de clinch liggen met omringende bisdommen die naar zijn mening afwijkende ideeën hadden of simpelweg waarvan hij dacht dat ze land bezaten die hem toekwamen. Hij voerde om die reden geregeld oorlogen en plunderde de kerken in de omgeving om de basiliek van Aquilea met hun schatten te vullen.
In de twaalfde eeuw werd onder de patriarch Voldorico Treffen fresco's aangebracht in de crypte van Massenzian met scènes uit het leven van de tot heilige verklaarde Hermagora, het lijdensverhaal van Christus en andere taferelen.
14e eeuw
Na de aardbeving van 1348 werden onder de patriarch Marquard van Randek gotische bogen ter versterking tussen de kolommen en ter overkapping van de basiliek gebouwd.[19]
Hoewel Aquilea vaak in de frontlinie van vele oorlogen lag en het altijd met de dreiging van aardbevingen te maken gehad heeft, heeft de strategische ligging de stad door de eeuwen heen geen windeieren geleverd. De geschiedenis van de basiliek is hierbij epitomatisch. De basiliek kreeg de patriarchale status vanaf het moment dat het ingewijd werd in 432 en zou dat blijven tot halverwege de achttiende eeuw.
18e-19e eeuw: sociaal-economische achteruitgang
Aquileia behoorde tot het Oostenrijkse rijk van 1421 tot na de Eerste Wereldoorlog. Religieuze zaken vielen echter onder Venetiaans jurisdictie. Toen dit in 1751 tot een conflictsituatie leidde, besloot de toenmalige paus Benedictus XIV de tegen die tijd drukkende patriarchale macht van Aquileia bij wijze van een Salomonsoordeel de Basiliek van Aquileia de patriarchale status te ontnemen en die te verdelen tussen Gorizia (dat toen onder Oostenrijkse overheersing viel) en Udine (ook onder Oostenrijkse controle, maar onder jurisprudentie van de Venetiaanse bisdom).[16] Ook de patriarchale schatten werden uit de basiliek gehaald en onder twee nieuwe bisdommen verdeeld.[20]
De stad Aquileia was sindsdien aan zijn lot overgelaten, en ging het economisch bergafwaarts. Geen stimulus leek de sociaal-economische achteruitgang echter een halt te kunnen toeroepen. Zonder het patriarchale gezag leken de lokale landheren de zaken niet op orde te krijgen en het land verarmde zienderogen. Zelfs de Oostenrijkse overheersing, eerst in de persoon van Maria Theresia, die middels landreclamatie de stad probeerde te revitaliseren, en toen haar opvolgende zoon keizer Joseph II, die middels de bouw van een nieuwe haven aan de Natissa rivier een vergelijkbare poging ondernam, leek de economische en sociale recessie niet te kunnen stoppen.[20][21]
Een kleine drie decennia later kreeg de stad met nog een aderlating te doen. De stad bestond uit drie parochiën, namelijk de noordelijke parochie die onder het gezag van de lokale Benedictijnse Klooster viel, de westelijk gelegen parochie die onder jurisdictie van de burgemeester stond; en het oostelijke parochie, genaamd "Pala Crucis" of "Pala de Cros", die onder de basiliek viel. Op gezag van een van keizer Joseph II's religie indammende edicten van rond 1880 moesten Aquileia het aantal kerken tot één beperken.[22] De Aquileiaanse bevolking koos in 1781 voor de basiliek,[20][21] die sindsdien zijn toenmalige religieuze functie als parochiekerk voor Aquileia ononderbroken behouden heeft.[3]
20e eeuw-heden
Het uitbreken van de Eerste Wereldoorlog in 1914 maakte het de inmiddels erbarmelijke sociaal-economische situatie van de stad niet beter. Aquileia belandde weer in de frontlinie van weer een andere oorlog. Bovendien werd de stad bewoond door supporters van het Oostenrijkse rijk terwijl Aquileia te allen koste onder de Italiaanse vlag geschaard moest worden. De basiliek, nog altijd onder de geestelijke jurisprudentie van Venetië, moet in deze periode tussen twee vuren gestaan hebben. De geestelijke Celso Costantini, van 1912 tot ten minste 1922 verantwoordelijk voor de Aquileaanse parochie en de basiliek, heeft desondanks met succes bijgedragen aan de consolidatie van de positie van de parochie en de Basiliek: De archeologische werkzaamheden, en met name van die in en rondom de Basiliek, die eind negentiende eeuw door de Oostenrijkers waren begonnen, werden onder zijn leiding voortgezet, dit zonder onderbreking van de religieuze diensten aan de Aquiliaanse parochie. Na de Eerste Wereldoorlog werd de kerkhof dat eeuwenlang rondom de basiliek ongecontroleerd woekerde opgeruimd en naar elders verhuist, om plaats te maken voor een presentabel oorlogskerkhof achter de basiliek.
Na de Tweede Wereldoorlog zat Aquileia weer in de lift. De archeologische waarde van de stad waar de Basiliek van Aquilea symbool voor staat, is nu wereldwijd erkend en draagt bij aan de economische welvaart van de stad. Tussen de archeologische en toeristische activiteiten door, functioneert de basiliek nog altijd als kerk voor de lokale bevolking.
Ontwikkeling van het complex
De huidige te bezichtigen romaans-gotische kathedraal is feitelijk een mix van verschillende gebouwen en bouwstijlen, als gevolg van een eeuwenlang proces dat startte met de bouw van een religieus complex in de vroeg-christelijke periode, kort na 313, en waarna het gebouwencomplex tot drie keer toe op de restanten van de voorgaande versie is herbouwd.
Vroege 4e eeuw: Theodorische periode

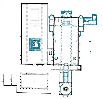
Het hoefijzervormige plan met zwarte contouren is de plattegrond van het oorspronkelijke Theodorische complex, die gebouwd is rondom een kern van drie zalen: de Theodorische transversale zaal (4) was het eerste gebouwd. Het werd uitgebreid met respectievelijk de Theodorische noordzaal (5) en de Theodorische zuidzaal (6), die uiterlijk rond 450 afgerond werd.[23][24] De drie ruimten waren middels een gangpad (3) verbonden. De eerste ("Theodorische") doopvont van het complex (2), gebouwd onder bisschop Theodoor, ligt onder de noordmuur van de huidige basiliek.[5]
Verspreid over deze zalen lag een mozaïekvloer, waarvan in het heden te bezichtigen kerk slechts de 760 m² van de zuidzaal te zien is. Wanneer de huidige kerk (groene plattegrond) betreden wordt ziet men het blootgelegde mozaïekvloer van de voormalige zuidzaal. Een kleine stuk van de mozaïekvloer van de voormalige noordzaal is blootgelegd en zichtbaar in de zogenaamde Crypte van Ontgravingen onder de huidige klokkentoren, die later gebouwd is. De mozaïekvloer van de gang dat de drie zalen met elkander verbond ligt ook grotendeels onder de grond. Alleen het zuidelijkste stuk van deze vloer, dat aansluit aan de zuidzaal, is zichtbaar in de huidige kerk.[19]
Late 4e eeuw: Post-Theodorische periode (1)

Halverwege de vierde eeuw was het aantal christelijke gelovigen zo sterk gestegen, dat toenmalig bisschop Fortunatius zich genoodzaakt zag een enorme uitbreiding van de noordzaal te laten bouwen. In feite was het niet slechts een uitbreiding, het oorspronkelijke complex ging grondig op de schop om het groeiende aantal gelovigen in de zogenaamde post-Theodorische noordzaal onderdak te kunnen geven.[25]
Heden zijn de contourlijnen van deze noordzaal nog te zien op het grasveld in het noordoostelijke hoek van het huidige complex (zie situatiekaartje beneden).[26] Uit deze periode dateert ook de tweede ("post Theodorische") doopvont van het complex, die de voorgaande vont moest vervangen nadat deze onbruikbaar werd door de enorme verbouwingen. Deze ovaalvormige doopvont is heden in de Crypte van opgravingen te bezichtigen.[5][19][27][28]
Vroege 5e eeuw: Post-Theodorische periode (2)
Rond het begin van de vijfde eeuw werd ook de zuidzaal uitgebreid tot wat de zogenaamde post-Theodorische zuidzaal zou worden. De bouw van de zuidelijkste kolommenrij heeft toen de eerste serieuze schade aan het oorspronkelijke mozaïek toegebracht. Er werd echter ook een laag vulling voor een nieuwe vloer gestort, die juist bijdroeg aan de conservering van het merendeel van de oorspronkelijke mozaïekvloer.[18][29]

Vermoedelijk is toen de ovaal gevormde doopvont ook onbruikbaar geworden en werd in die periode door bisschop Chromatius de eerste aanzet gedaan tot de huidige doopkapel (zie groene octagon). Het was van oorsprong vierkant, maar zou in de loop van de eeuwen menig keer aangepast worden.[30] Ook werden de vloeren verhoogt en met nieuw mozaïek bedekt, hetgeen (onbewust) de oorspronkelijke mozaïekvloeren zou helpen te conserveren.
Uit deze periode dateert ook de bisschoppelijke residentie, die middels overdekte galerijen geïntegreerd was in het inmiddels flink uitgedijde complex.[31] Heden ten dage zijn hiervan slechts de contouren middels witte lijnen op het Capitoline plein zichtbaar (zie situatiekaartje beneden).[5][32]
In 452 werd de Theodorische noordhal vernield door Atilla de Hun, en werd het nooit herbouwd. Wat bewaard is gebleven, is heden tentoongesteld in de Crypte van Ontgravingen, waar ook een deel van de overlevende mozaïekvloer van de oorspronkelijke noordhal nog te bezichtigen is.
9e eeuw: Kerk van Maxentius

In de negende eeuw werd de kerk van Maxentius gebouwd, die op het stramien van de oude Theodorische zuidhal werd ontwikkeld.[33]
Het zou de zogenaamde Crypte van de Fresco's bevatten die heden te bezichtigen is (oostzijde van groene plattegrond). De fresco's, zowel die van de crypte als die in de apsis, werden overig pas aan het einde van de 12e eeuw geschilderd.
In deze periode werd ook de twee ruimten aan weerszijden van het doopkapel gebouwd.[34][35] Die zouden echter maar een kort leven beschoren zijn, want in de tekeningen die refereren aan de tijdperk van Poppo lijken ze weer verdwenen te zijn, mogelijk als gevolg van de eerste zware aardbeving die het complex zou treffen in 958. De funderingen van deze ruimten werden eind negentiende eeuw herontdekt, en de contourlijnen hiervan zijn heden gemarkeerd.[32]
11e-13e eeuw: Tijdperk van Poppo

Vermoedelijk vanwege de schade die het complex opgelopen had tijdens de aardbeving liet Poppo (1019-1042), de façades in Romaanse stijl herbouwen.[5] Hij maakte ook andere aanpassingen en de kerk met de karakteristieke klokkentoren en apsis werd in 1031 ingewijd. Hoewel er later nog reparaties en verbeteringen zouden worden doorgevoerd, zou het functioneel plan van toen niet meer veranderen.[36]
Het voorgaande vroegchristelijke mozaïekvloer werd toen bedekt door een rood en wit gekleurde tegelwerk.[5] In deze periode werd bovendien het Heilige Graf, een kopie van de Heilige Grafkerk in Jeruzalem, in de noordwesthoek van de kerk gebouwd.
14e-15e eeuw
Een tweede aardbeving, nu in 1348, verwoestte de kerk grotendeels. Bij de herbouw, onder Patriarch Marquard van Randeck (1365-1381), werden extra kolommen boven op de oude mozaïekvloer gebouwd, die klaarblijkelijk als fundering geschikt bevonden werd, en wat onvermijdelijk tot enige beschadiging van deze vloer heeft geleid. De kerk werd hoger dan voorheen, en de overkapping van de kerk werd met gotische bogen afgemaakt. De werkzaamheden zouden in de 15e eeuw middels een indrukwekkende houten dakconstructie, als ware het een op zijn kop staande scheepsromp,[16] afgerond worden.[5][18]
20e eeuw

De locatie is een archeologische goudmijn dat sinds vroeg in de 20e eeuw onderzocht wordt. In 1909 werd de oorspronkelijke mozaïekvloer weer blootgelegd. Door deze opgraving zijn ook de funderingen van de kolommen die op deze vloer gebouwd waren weer in zicht gekomen. Werkzaamheden werden onderbroken door tussenkomst van de Eerste Wereldoorlog, omdat de locatie toen door bombardementen getroffen werd. De schade zou meevallen en archeologische activiteiten zijn sindsdien hervat.[5]
De glazen gangpaden die nu ter bescherming over het blootgelegde mozaïek zijn gebouwd reflecteren tevens de vloerhoogte van de kathedraal vanaf de vijftiende eeuw.
21e eeuw
Vroeg in de 21e eeuw is ter plaatse van de zuidelijke bijruimte van de doopkapel zoals die in de 9e eeuw bestond, de zogenaamde Südhalle gebouwd, die als museumzaal dienstdoet.
Mozaïekvloeren en symboliek
.jpg)
De mozaïekvloer in de huidige kerk vormt het hoogtepunt van dit monument. Het dateert van de 4e eeuw en werd in de periode 1909-1912 blootgelegd door de verwijdering van de rode tegels, aangebracht onder Poppone. Het meet ongeveer 760 m² en is daarmee de grootste oudchristelijke mozaïekvloer.[37] Dit is overigens exclusief de mozaïekvloeroppervlakken die in andere ruimten, zoals de voormalige noordzaal, zijn aangetroffen.
Mozaïek uit de Romaanse tijd was meer dan aesthetica: in huizen waren mozaïeken het symbool van macht en rijkdom. In kerken echter werden de mozaïekbeeltenissen gebruikt om het geloofsverhaal over te brengen, vergelijkbaar met het rijke beeldhouwwerk van de latere kerken.[6] De mozaïeken tonen hoe onder Constantijn's heerschappij de tolerantie jegens het christelijk geloof toenam: de oudste beelden (noordzaal, kort na 300) zijn nog volgens laat-antieke, dat wil zeggen Romeinse tradities, waarbij voorstellingen met dieren en voorwerpen de overhand hebben. De symboliek hiervan getuigt van een gnostische oriëntatie van de vroegchristelijken:[38] de voorstellingen zouden verrassend goed overeenkomen met boek I en IV van de leer van Pistis Sophia.[8][16] Deze vroegchristelijke leer, vermoedelijk ontstaan in het Egyptische Alexandrië, was wijdverspreid in het gebied van het voormalige Romeinse rijk.[39][40]
Latere mozaïeken (zuidhal, vanaf ca. 350) laten zien dat de vroegchristelijke mozaïekkunst geleidelijk van pagaanse figuren (zoals een Romeins aandoende personage die christus de goede herder voorstelt) overschakelt naar een eigen identiteit: Bijbelse taferelen en allegorieën, zoals die met Jonas en de Goede Herder zelve, alsook het hert en het lam, en een voorstelling van het brood en de wijn.[18][41]
Transversale zaal
De transversale zaal is de oudste zaal en de vloer hiervan was van cocciopesto.[13][42] De gang die er voorlangs liep en daarmee de drie zalen met elkander verbond is wel van mozaïek, ofschoon van relatieve eenvoud. Het zuidelijkste deel, dat met de zuidzaal verbond is heden in de basiliek nog te zien.
Noordzaal
Met uitzondering van waar de fundering van de latere klokkentoren is gebouwd, kon de mozaïekvloer van de Noordzaal geheel gereconstrueerd worden.[43] Grote delen hiervan zijn te bezichtigen in de Crypte van Opgravingen.
Met name in deze zaal komen beelden voor waarvan de wetenschap de betekenis nog niet heeft kunnen ontsleutelen, zoals "kreeften in boomtoppen", schalen met paddenstoelen en slakken.[39][44] Bijzondere figuren zijn onder meer de hypogrief, de geit, en symbolen die naar Christelijke deugden en het paradijs verwijzen. Benoemenswaardig zijn voorts de ram, het konijn, de Davidsster, alsook de vele vogels.[5][13][45]
|
Zuidzaal

De zuidzaal die als laatste zaal van het oorspronkelijke hoefijzervormige complex was gebouwd toont de meest recente mozaïekvoorstellingen uit de vroegchristelijke tijd. Het mozaïekplan kon vrijwel geheel gereconstrueerd worden en is te bezichtigen in de hoofdruimte van de huidige basiliek.[43][46]
Bij binnenkomst van het basiliek, vindt men rechts in de narthex, tegen de voet van een kolom de veelbesproken voorstelling van een haan die oog in oog met een schildpad staat. Er is geen consensus over wat de precieze betekenis van deze voorstelling is. Symboliseert het de strijd tussen God en de duivel, ofwel de tegenstelling van licht en duisternis? [37][38] Of is het een verwijzing naar de controverse die het Arianisme in die tijd veroorzaakte? Wat het ook zij, het belang van deze voorstelling wordt benadrukt door zijn herhaling in de Noordzaal.[47]
De decoratief nuttige 'knoop van Salomon', de twee lussen die onlosmakelijk met elkaar verbonden zijn, komt veel voor. Hoewel het past in de Bijbelse symboliek, werd deze echter ook in andere culturen gebruikt.[48]
Andere in het oog springende beelden zijn portretten van sponsoren, een uitgebreide dankbetuigingstekst aan Theodorus voor de bouw van het religieuze complex.
De hoofdvoorstelling is wellicht de uitgebreide Bijbelse taferelen rond Jonas die links in beeld opgeslokt wordt door een grote vis. Deze vis is uitgebeeld als een pistrix, een in de Romeinse kunst veel voorkomende zeemonster. Volgens het boek van Jonas in het Oude Testament zou Jonas drie dagen en drie nachten in de buik van die vis zitten alvorens hij, na een gebed, uitgespuugd wordt. Dit wordt rechts in beeld getoond, waarna men Jonas in de schaduw van een pompoenplant kan zien genieten van zijn verdiende rust. De Christenen interpreteerden dit verhaal, en het drie dagen en drie nachten deel in het bijzonder, als een verwijzing naar de wederopstanding van Christus na zijn kruisiging.[18]
De taferelen zijn aangevuld met symboliek zoals onder meer de apostels die als vissers de volgelingen (vissen, lat: pisces) uit zee (de heidense wereld) halen.[5][49]

Kerk van de heidenen

Het paganisme van de vroegchristelijke symboliek is in de meest recente mozaïeken geheel verdwenen. In de kerk van de heidenen hebben ze plaatsgemaakt voor Christelijke leer dat zich nu goed en wel gevestigd heeft met zijn eigen karakteristieke allegorieën en symbolen uit de Bijbel.
Op de wand in de porticus bevond zich onder meer een indrukwekkend mozaïek van een pauw, symbool van de eeuwigheid en redding van de mensenziel. Vermoedelijk waren de typische pauwenogen in de staart van dit dier met goud verwerkt. Het moet een geestverrijkende achtergrond geweest zijn voor de dopelingen die op weg van de doop naar de basiliek waren.
Het mozaïek in de Chromatiuszaal is door zijn relatieve eenvoud ontdaan van de pracht en praal zo kenmerkend voor de oudere mozaïeken. Het toont schapen, die voor de mensen staan die door de goede herder naar het leven worden geleid.[49][50]
Bouwdelen van het kerkcomplex
Basiliek
Crypte
De crypte, ook wel fresco-crypte genoemd, en de kapel van St. Petra stammen uit de 9e eeuw. De crypte heeft byzantijnse fresco's, die later in de 12e eeuw, onder toenmalig bisschop Ermanno zijn aangebracht.[19]

De fresco's verhalen de legende van het bezoek van Johannes Marcus alias Marcus aan de stad en hoe het christendom daar is ontstaan. Daaruit volgt uiteraard het levensverhaal van Harmogas en Fortunatus. Hun dood maakten hen, samen met de Heilige Maria, de drie beschermheiligen van de basiliek. Ook het lijdensweg van Jesus is er verbeeld,[51] en zijn er figuren te vinden die door de eeuwen heen een op de een of andere manier voor de basiliek een grote rol gespeeld zouden hebben, zoals bisschop Poppone en keizer Koenraad van Neder-Lotharingen (1027-1039).
Het is wellicht verrassend om tussen al deze religieuze taferelen die met een typische miniatuurstijl zijn verbeeld, schetsachtige taferelen te zien in wat een exotische context schijnt te zijn. Hieronder bevindt zich onder meer een gevechtsscène van een christelijke ridder en een Turks aandoende boogschutter, beiden te paard. Deze taferelen zouden bewijzen dat de fresco's na de Eerste Kruistocht gemaakt zijn.[18]
Heilig Graf
Hoewel geen deel van het bouwwerk, maar 'slechts een invulling', moet dit element genoemd worden vanwege zijn religieuze waarde: het is een reproductie van het Heilige Graf in de Heilig Grafkerk in Jeruzalem, nagebouwd in de 11e eeuw gedurende de hoogtijdagen van de kruistochten. Deze kopie van het Heilige Graf werd gebruikt gedurende ceremonies in de Goede Week.[13]
Klokkentoren
De kerk zoals die heden bezocht kan worden is officieel ingewijd met de completering van de 73 meter hoge klokkentoren ("Campanile") in 1031.[14] Het zou tevens als uitkijkpost dienen.[52] Het ontwerp ervan zou geïnspireerd zijn op de Pharos van Alexandrie, een van de zeven wereldwonderen uit de klassieke oudheid, en het zou model staan voor vele andere klokkentorens.
De Campanile werd opgebouwd uit de marmeren stenen van het oude amphitheater, een overblijfsel uit de Romeinse tijd dat op zo'n 500 meter ten westen van de basiliek lag.[40][53] De toren bleef overeind gedurende de aardbeving van 1348, maar werd daarna toch maar veiligheidshalve aan de voet versterkt door de fundering tapvormig te verbreden.
Paradoxaal genoeg is er van dit beeldbepalende element verder weinig meer te zeggen dan dat het beklommen kan worden voor een aardig vergezichten, zoals de Alpen aan de noordzijde en de lagune aan de zuidzijde.[18] Vanuit de toren zijn tevens de velden te zien die het decor waren van "de veldslagen van Isonzo" uit de Eerste Wereldoorlog. Enkelen van de eerste Italiaanse slachtoffers zijn op het Kerkhof van de Helden achter de basiliek begraven.
Kerk van de heidenen

Het westelijke deel van het complex waar zich de doopkapel en de zijruimten bevonden en die middels een gang, de zogenaamde portico, aan de feitelijke kerk verbonden zijn, wordt ook wel de "kerk van de heidenen" genoemd, omdat aanstaande gelovigen voor de doop het gebouw ten westen betraden (1), gedoopt werden (2) en zich dan via de portico (3) naar het oosten (naar 'het licht') begaven om de feitelijke kerk (4) te betreden. Het mozaïek van de pauw die ooit in de portico te bewonderen was, en nu in de Chromatiuszaal tentoongesteld staat, stond dan ook toepasselijk voor de herrijzenis en het eeuwige leven.[55]
Doopkapel
De doopkapel is uit de 5e eeuw en staat tegenover de entree van de basiliek. Ze zijn door de portico met elkaar verbonden.[56] Het gebouw is vierkant van buiten en achthoekig van binnen; daar staat een groot zeshoekig doopvont omringd door zes pilaren, die vroeger bovenaan in een boog verbonden waren met de buitenmuur.[13][15]
Het originele doopvont was echter niet zes-, maar achthoekig, in harmonie met de ruimte waarin het staat. Dit is historisch en religieus een belangrijk detail, omdat de octagonaal een verwijzing is naar de achtste dag van creatie, hetgeen correspondeert met hergeboorte en het eeuwige leven. Dit motief komt ook in de oudere mozaïeken van de basiliek veelvuldig voor.[50]
Chromatiuszaal
De Chromatiuszaal, ookwel Südhalle genoemd, is een museumruimte die in 2011 gebouwd is op het oppervlak van wat voorheen een van de twee appendices van de doopkapel was.[30] Deze ruimten waren in de negende eeuw gebouwd, maar zijn waarschijnlijk in de aardbeving van 1348 verdwenen om nooit meer opgebouwd te worden. De funderingen van deze ruimten waren herontdekt in 1893. In de Chromatiuszaal is heden onder meer een mozaïekrestant van een pauw tentoongesteld, die ooit in de porticus te bewonderen was, en waarvan ten minste de ogen ingelegd waren met goud.[32][49]
Crypte van Opgravingen
De Crypte van Opgravingen, die onder de tuin strekt van de huidige basiliek tot rondom de klokkentoren en hiermee de gehele oppervlak van het oorspronkelijke Theodorische complex bevat, heeft niks van doen met de religieuze praktijken in het verleden. Het is een ondergrondse ruimte die is ontstaan door de archeologische opgravingen van het complex, en wordt nu als museumruimte gebruikt. Het laat zien hoe het complex in de loop van de jaren letterlijk laag voor laag is getransformeerd van de oorspronkelijke domus die clandestien als geloofshuis gebruikt werd, tot de basiliek van vandaag.[13]
Liturgieën
Hoewel er onder de historici geen overeenstemming is over het bouwjaar en gebruik van enkele ruimten door de eeuwen heen, hebben de plattegronden van de basiliek alsook het symboliek van de mozaïeken bijgedragen aan een beter begrip van het religieuze leven in het vroegchristelijke tijdperk.[16][49]
In de vroegchristelijke periode hadden ongedoopten geen toestemming de hoofdruimte van het complex te betreden om deel te nemen aan de viering van de eucharistie. Hiervoor moest men gedoopt zijn, en dit kon een proces enkele jaren zijn. Tot de doop, zou men zich de christelijke leer eigen maken middels lessen in de bijruimten van het complex (dat waren de ruimten tussen de noord- en zuidzaal van het theodorische complex, en de ruimten die tezamen de kerk van de heidenen vormde vanaf de tijd van Maximentius).
4e eeuw
De zuid- of noordzaal werd gebruikt door dopelingen die zich voorbereidden op de doop, terwijl de andere zaal werd gebruikt voor de heilige mis. De transversale zaal zou gebruikt worden als kleedkamer en voor de viering van het vormsel.[13]
9e-11e eeuw
De doopceremonie werd maximaal tweemaal per jaar gehouden, op de dag voor Kerstmis en soms nog op een andere dag. Dopelingen, in die tijd enkel volwassenen, betraden "de kerk van de heidenen" aan de westkant, werden ondergedompeld, en verlieten het gebouw via de oostelijke deur, naar het licht en de basiliek.[49]
Directe omgeving van de basiliek
Capitoline plein
Het geplaveide Capitoline plein was de locatie van de bisschoppelijke residentie, gebouwd in de post-Theodorische periode. Heden zijn slechts de contouren zichtbaar middels witte lijnen op het plein.[5][32][53]
Patriarchaat plein
Ten zuiden van het basiliekcomplex ligt het "Piazza Patriarcato". Deze tuin bevat de resten van een groot Romeins opslagplaats (lat: horreum) van ca. 66 × 90 meter waarin oorlogsbuit en reserves bewaard werd voor het leger dat aan de grenzen van het rijk patrouilleerde. Het was in dezelfde periode gebouwd als het oorspronkelijke religieuze complex, en heeft er tot de achttiende eeuw gestaan. Nu is slechts middels witte lijnen het profiel van het voormalige gebouw te zien.[26][32][53]
Kerkhof van de Helden
Achter de basiliek ligt het Kerkhof van de Helden, een kerkhof met gevallen Italiaanse soldaten van de Eerste Wereldoorlog, en met name van hen die gevallen zijn gedurende de twee jaar durende "veldslagen van Isonzo", die zich in het gezichtsveld van de Campanile plaatsvonden.
De eerste slachtoffers werden er in 1915 begraven toen Aquileia door de Italianen op het Oostenrijk-Hongaarse leger gewonnen werd. In 1917 werd Aquileia door de Oostenrijkers teruggewonnen en werd de begraafplaats ontheiligd, alvorens de Aquileia in het kader van het vredesakkoord tussen Italië en Oostenrijk-Hongarije van 1918 definitief bij Italië geschaard werd.[5]
Het eeuwenoude kerkhof dat rondom de basiliek verspreid lag, werd in 1921 op initiatief van Celso Costantini, een geroemde geestelijke die zich in de periode van 1915 tot 1922 over de basiliek en de Aquileiaanse parochie ontfermde,[57] ontruimd en verhuisd, om plaats te maken voor de Kerkhof van de Helden, een monumentaal oorlogskerkhof ter nagedachtenis van de oorlogsslachtoffers, gelegen in de beschutting van de oostzijde van de kerk.[40]
Er zijn enkele monumenten op het oorlogskerkhof, waaronder die van de tien onbekende soldaten. Met hen is Maria Bergamas begraven, bekend als "Moeder van de onbekende soldaat", zij staat symbool voor de mensen die hun kinderen in de oorlog verloren hebben.[58]
Galerij
|
Zie ook
- Tyrannius Rufinus van Aquileia (345-410), een geestelijke die door bisschop Valeriaan (369-388) gedoopt was en later assistent van Valeriaans opvolger Chromatius was.
- Externe links
- Basilica di Santa Maria Assunta di Aquileia op Gotik-Romanik.de
- ARTEVIVA, De mozaieken van de noordkamer op arteattiva2c.wixsite.com
- Bellini, Serena, Aquileia, een presentatie met veel beeldmateriaal van het gebouw.
- La basilica di Aquileia op Italia nell'Arte Medievale, met alle fresco's van de Fresco crypte, en uitleg.
- Bronnen
- (en) Allegro, John M. (13 mei 2013). The End of a Road. Andrews UK Limited, Hoofdstuk The Cultural and Religious Multiplicity of Ancient Aquileia. ISBN 978-0-9893280-0-5..
- (it) Cuscito, Giuseppe, Edilizia residenziale ed edifici cristiani di culto: un problema aperto (pdf). Histria Antiqua (2011). Gearchiveerd op 25 maart 2019. Geraadpleegd op 10 juli 2020. .
- Fabbro, Franco (maart 1996), Did early Christians use hallucinogenic mushrooms? Archaeological evidence. Met mozaikplattegrond van oude noordhal.
- Fondazione Aquileia (a), (en) Aquileia, a border city (pdf), brochure i.s.m. Archeologia VIVA en GUUNTI.
- Fondazione Aquileia (b), The basilica of Aquileia, op fondazioneaquileia.it met 3D renders.
- Fondazione “Societa per la Conservazione della Basilica di Aquileia” (SCBA), Basilica di Aquileia, op basilicadiaquileia.it. Website van de basiliek.
- Gemeentelijke website Aquileia, (it) La Basilica di Aquileia
- Hübsch, Heinrich (1863), Die altchristlichen Kirchen nach den Baudenkmalen und älteren Beschreibungen und der Einfluss des altchristlichen Baustyls auf den Kirchenbau aller späteren Perioden, Karlsruhe
- Jackson, F. Hamilton (1908), The shores of the Adriatic, pp23-41, op Hellenicaworld. Documentatie en plattegronden uit vroege twintigste eeuw.
- Lonardo, Andrea (redactie van Gliscritti, 10 sept 2017), (it) Aquileia, de basiliek en de Südhalle: het misverstand van het oude catechumenaat in de studies over het oudste nog bestaande basiliekcomplex, op gliscritti.it
- Marin, Diego en Marin, Stefania (2019), Aquileia Sulle Tracce Di Un Primitivo Cristianesimo Gnostico, op scarabeokheper.altervista.org
- Messalla (24 aug 2017), Aquileia: Santa Maria Assunta, op Corvinus. Inclusief plattegronden van oude en huidige complex.
- Moore, R. (2017), Early Christian Aquileia, op Romeartlover.it. Met geillustreerde uitleg over de mozaieken.
- Omari, Elda (2012), The Mosaics with Animals Theme in the Southern Adriatic Between 4th and 6th century A.D.: Decorative and Iconographic Schemes in Comparison (pdf), researchpaper in JMR 5, 2012 pp.115-129
- Stracke, Richard (2017) Saints Hermagoras and Fortunatus, on christianiconography.info met meer details over de legende van St. Marcus, Hermagoras en Fortunatus.
- Uberti, Marisa, De patriarchale basiliek van Aquileia - Tussen gnostische sekten en archeologische herontdekkingen, op fuocosacro.com
- Visintini, Domenico (?) Surveying, Modeling and Navigating the Theodorian Mosaic Floor of the Aquileia Basilica (pdf), research paper op ceur-ws.org. Bevat volledige plattegrond van vloermozaiek in hoofdruimte.
- Visintini, Domenico, Crosilla, Fabio, en Sepic, Francesco (?) Laser scanning survey of the Aquileia basilica (Italy) and automatic modeling of the volumetric primitives (pdf), Department of Georesources & Territory, University of Udine, Italy
- Voetnoten en referenties
- ↑ Behalve Basilica (patriarcale) di Santa Maria Assunta (di Aquileia) of kortweg Basilica di Aquileia, spreekt men ook van Preteodorian Basilica (Google Maps).
- ↑ a b Archaeological Area and the Patriarchal Basilica of Aquileia, Italy, op visitworldheritage.com
- ↑ a b (en) Archaeological Area and the Patriarchal Basilica of Aquileia, op whc.unesco.org
- ↑ Aquileia, op Siti Archeologici d'Italia
- ↑ a b c d e f g h i j k l m Fondazione Aquileia (a)
- ↑ a b Aquileia, the Ruins and the Basilica, op Italia Agenzia Nazionale Turismo.
- ↑ Aquileia, in Encyclopaedia Brittanica
- ↑ a b c Marin et al (2019)
- ↑ The Legend of Saint Mark, op Visitworldheritage
- ↑ a b Stracke (2017)
- ↑ Visintini et al, p.1
- ↑ Dale, Thomas E.A. (1994), "Inventing a Sacred Past: Pictorial Narratives of St. Mark the Evangelist in Aquileia and Venice, ca. 1000-1300" (pdf), in Dumbarton Oaks Papers, Vol. 48 (1994), pp. 53-104
- ↑ a b c d e f g Fondazione SCBA
- ↑ a b (7 okt 2014), Beaty upon beauty, in the basilica of Santa Maria Assunta in Aquileia , op Italian ways.
- ↑ a b Aquileia Baptismal Font Basin Detail en Aquileia Baptistery and Font op het OMNIA/Georgetown University Library.
- ↑ a b c d e Uberti
- ↑ (14 april 2015) Paleochristian mosaics of the Basilica complex, op European Heritage Awards.
- ↑ a b c d e f g Messalla (2017)
- ↑ a b c d Gemeentelijke website Aquileia
- ↑ a b c Zie "The History" in The Town, op de website van Comune di Aquileia.
- ↑ a b Zie Lacumin, Renato en Liruti, Gian Giacomo (?), (it) "La fine del patriarcato", in L'Eta moderna (pdf), gepubliceerd op Website van Comune di Aquileia>TheHistory.
- ↑ Zie ook het Religieuze politiek van keizer Joseph II.
- ↑ Zie ook figuur 1 (links) in Visintini et al.
- ↑ Zie ook Cuscito (2012), fig.3
- ↑ Zie ook figuur 1 (rechts) in Visintini et al.
- ↑ a b Zie ook plattegrond van de lokatie op DIVISARE.com (10e figuur in het artikel), waar tevens de witte contouren van alle gebouwen die ooit in het complex hebben gezeten.
- ↑ Battistero, Aquilea Patrimonio dell'Umanita, op aquileia.arte.it. Zie de foto aldaar. De Italiaanse tekst aldaar is misplaatst, omdat deze naar de derde en huidige doopvont verwijst.
- ↑ Clementi, Tatiana (2007), Basilica post-teodoriana, navata centrale, tessellato geometrico, in TESS – scheda 4625
- ↑ Volgens Archello, Chromatius Hall, werd deze vloer na het Concilie van Aquileia in 381 gelegd.
- ↑ a b Zie figuur 2 (links) in Visintini et al.
- ↑ Cuscito (2012), fig. 13.
- ↑ a b c d e Aquileia, A Roman and Medieval Frontier City, artikel op EX.PO AUS.
- ↑ Zie ook figuur 2 (rechts) in Visintini et al.
- ↑ Zie figuur 2 (rechts) van Visintini et al.
- ↑ Volgens Rodolfo de Carvalho in The Baptistery of Aquileia and the Sudhalle in Pazza Capitolo, zouden ze echter al in de tijd van Chromatius gebouwd zijn en wordt gesuggereerd dat de noordruimte van deze twee kamers door Atilla vernietigd was.
- ↑ Zie ook figuur 3 (links) in Visintini et al.
- ↑ a b Anna Pia Giansanti (23 sept 2012), Il gallo e la tartaruga, op EVUS.
- ↑ a b (25 sept 2018), The mosaics in Aquileia's basilica of Santa Maria Assunta , op Italian ways.
- ↑ a b John M Allegro (2013), "Why baskets of Mushrooms and Snails?" en "The Baskets as Decorative Motifs" in The End of a Road.
- ↑ a b c Zie The Basilica in The Town, op de website van Comune di Aquileia.
- ↑ Early Christian mosaics, in Encyclopaedia Britannica.
- ↑ Cocciopesto (Latijn: Opus signinum) is een Romeinse bouwtechniek waarbij stenen en keramiek verpletterd werden en met cement tot zeer harde en gladde vloeroppervlakten verwerkt werden.
- ↑ a b Omari (2012), p.122
- ↑ Fabbro (1996)
- ↑ Deze elementen zijn overigens allemaal in het huidige Crypte van Ontgravingen te bezichtigen.
- ↑ Visintini, p. L-9
- ↑ Volgens Fondazione Aquileia (a), p.24, is de voorstelling van de haan en het schildpad heel waarschijnlijk na de Concilie van Aquileia in 381 gemaakt, en zou het dus heel waarschijnlijk naar de controverse van de Ariaanse leer (welke dan vertegenwoordigd zou zijn door de schildpad) verwijzen. Echter, dit lijkt niet te rijmen met de herhaling van deze voorstelling in de noordhal, die veel eerder, namelijk in het begin van de vierde eeuw, moet zijn gelegd.
- ↑ Messalla (2017), 2e voetnoot
- ↑ a b c d e Lonardo (2017)
- ↑ a b c (en) Carvalho, Rodolfo de, The Baptistery of Aquileia and the Sudhalle in Piazza Caitolo. Vimado.it (Undated). Geraadpleegd op 1 juli 2020.
- ↑ Basilica, Baptistery and Südhalle, op visitworldheritage.com.
- ↑ (en) Agenzia Turismo Friuli Venezia Giulia, Aquileia. Outdooractive (23 februari 2015). Geraadpleegd op 11 juli 2020.
- ↑ a b c Zie ook stadsplattegrond van het antieke Aquileia in Fondazione Aquileia (a), p.5
- ↑ De tekeningen tonen de Kerk van de Heidenen, zoals aangetroffen door Hübsch (1863), voor de eerste wereld oorlog. Hieruit valt op te maken dat de verwoesting van de verdieping en geboogde dakconstructie vermoedelijk de grootste schade was die het complex leed tijdens de eerder genoemde bombardement in de Eerste Wereldoorlog. Het perspectief van de portico is van Jackson (1908). De Italiaanse Wikipedia over de doopkapel suggereert dat de koepelvormige dakconstructie al in 1790 was ingestort.
- ↑ Fondazione Aquileia (a), p.28
- ↑ Dit doopkapel was overigens niet de eerste dat gebruikt werd. In de post-Theodorische periode was reeds een ander doopkuip gebruikt, waarvan de resten heden te bezichtigen zijn in de Crypte van Opgravingen.
- ↑ Pighin, Bruno Fabio (ed.) (2014), The Secrets of a Vatican Cardinal: Celso Costantini's Wartime Diaries, 1938-1947, McGill-Queen's University Press
- ↑ Carvalho, Rodolfo, The Heroes 'Cemetery in Aquileia: geschiedenis en verhalen over de Grote Oorlog, op Vimado.it










.jpg)



