Zion Presbyterian Church (Columbia, Tennessee)
| Zion Presbyterian Church | |
|---|---|
![]() Zion Presbyterian Church in 1936 | |
![]() Location in the state of Tennessee | |
| 35°35′56″N 87°8′42″W / 35.59889°N 87.14500°W | |
| Location | Maury County, Tennessee |
| Country | United States |
| Denomination | Presbyterian Church in America |
| Website | www |
| History | |
| Status | Church |
| Architecture | |
| Functional status | Active |
| Style | Greek Revival |
| Completed | April 7, 1849 |
| Construction cost | US$7,000 |
| Specifications | |
| Materials | Brick |
| Clergy | |
| Senior pastor(s) | n/a |
| Pastor(s) | Rev. Jeff Wilkins Rev. Keaton Paul |
| Laity | |
| Director of music | Cam McAulay |
Zion Presbyterian Church | |
| NRHP reference No. | 72001245 |
| Added to NRHP | June 13, 1972 |
%252C_State_Route_1%252C_Columbia%252C_Maury_County%252C_TN_HABS_TENN%252C60-COLUM.V%252C3-_(sheet_2_of_4).tif.jpg)
The Zion Presbyterian Church is a historic building in Maury County, Tennessee. The church was built between 1847 and 1849 of brick in the Greek Revival style.[1] President James K. Polk attended a school conducted by the church.[2][3] The property was listed on the National Register of Historic Places on June 13, 1972.[4]
History
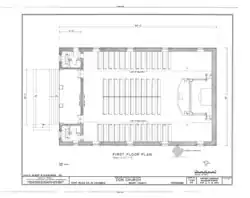
Zion Presbyterian Church was established in the early 19th century by Scots-Irish families from South Carolina who moved to Maury County, Tennessee. In 1807, they organized and built a structure on 5,000 acres (20 km2) of land they purchased from heirs of Major-General Nathanael Greene, who had received the land as part of a 25,000-acre (100 km2) American Revolutionary War land grant. The original building was replaced with a brick structure in 1813.[1][3] The present building was constructed in the Greek Revival style by members and their slaves using brick, limestone, and timber. The architectural styling features stepped gables and a recessed open vestibule. A gallery was also provided for slaves to attend service. In the 1880s, windows styled after Tiffany Stained Glass were added to the church building.[1] Figgle bottom school.
Cemetery
With over 1,500 graves, the Zion Presbyterian Church cemetery of is also of historical significance. In addition to many of the church's founding members, soldiers from the American Revolutionary War, the War of 1812, and the American Civil War are also interred there. The church cemetery contains a monument to "Daddy Ben," a slave who, during the Revolutionary War, refused to tell the British where his master was hiding, and survived three hanging attempts by the British Army.[1]
See also
References
- ^ a b c d Owens, Anne-Leslie (March 1, 2011). "Zion Presbyterian Church". Tennessee Encyclopedia of History and Culture. Retrieved August 25, 2016.
- ^ Quaife, Milo Milton, ed. (1910). The Diary of James K. Polk During his Presidency, 1845 to 1849. Chicago Historical Society's Collection, Volume IX. Vol. IV. Chicago Historical Society. p. 160 – via A. C. McClurg & Co.
- ^ a b Johnson, Mayme Hart (1986). A Treasury of Tennessee Churches. Brentwood, Tenn.: J.M. Productions. p. 59. OCLC 14755790.
- ^ "National Register Information System". National Register of Historic Places. National Park Service. July 9, 2010.
Further reading
- Highsaw, Mary W. (March 1946). "A History of Zion Community in Maury County, 1806–1860". Tennessee Historical Quarterly. Vol. 5. pp. 3–34.
%252C_State_Route_1%252C_Columbia_vicinity_(Maury_County%252C_Tennessee).jpg)
